Multifunkční areál s bydlením i podnikáním – přímo u E55, Votice
Na prodej nabízíme rozsáhlý a plně oplocený areál se stavbami o celkové výměře 3 345 m², který díky své poloze, velikosti a dispozičnímu řešení představuje výjimečnou příležitost pro podnikatele i investory. Místo kombinuje možnost okamžitého provozu, ubytování pracovníků, skladového zázemí i bydlení v jedné lokalitě. Součástí nabídky jsou dvě samostatné stavby – oba objekty vedené jako rodinné domy – vhodné pro kanceláře, dílnu, sídlo firmy, provozovnu nebo ubytovací zařízení.
K areálu navazují také dva zemědělské pozemky o rozloze 1 692 m², díky kterým získáváte celkem 5 037 m² půdy ve vyhledávané zóně BV (bydlení venkovské) s širokým spektrem povoleného využití. Tato územní kategorie umožňuje jak bydlení, tak nekolizní výrobu, sklady, zázemí firmy, parkování techniky či ubytovací služby.
Umístění u hlavní silnice E55 zajišťuje perfektní viditelnost pro jakýkoliv druh podnikání – denně zde projede více než 15 000 vozidel. Výhodou je také přímý vjezd z komunikace a blízkost plánovaného sjezdu z dálnice D3 u Voračic, který v budoucnu ještě zvýší dostupnost a hodnotu lokality.
Co umožňuje územní plán (BV – bydlení venkovské)
-rodinné domy, venkovské usedlosti
-drobná a řemeslná výroba bez negativních vlivů
-mechanické dílny, servisní činnost
-sklady, parkování vozidel a techniky
-provozy služeb a obslužné objekty
-hobby zemědělství a chov
-ubytovací zařízení a ubytování zaměstnanců
-možnost parkování přímo na pozemku
Klíčové přednosti areálu
-propojení bydlení, podnikání a ubytování na jednom místě
-maximální viditelnost u E55, možnost legální reklamy (např. vozidlo s plachtou)
-velká variabilita díky zóně BV
-objekt A připraven k okamžitému využití
-připravené zázemí a prostor pro další úpravy
-strategická poloha u E55, nedaleko budoucího nájezdu na D3
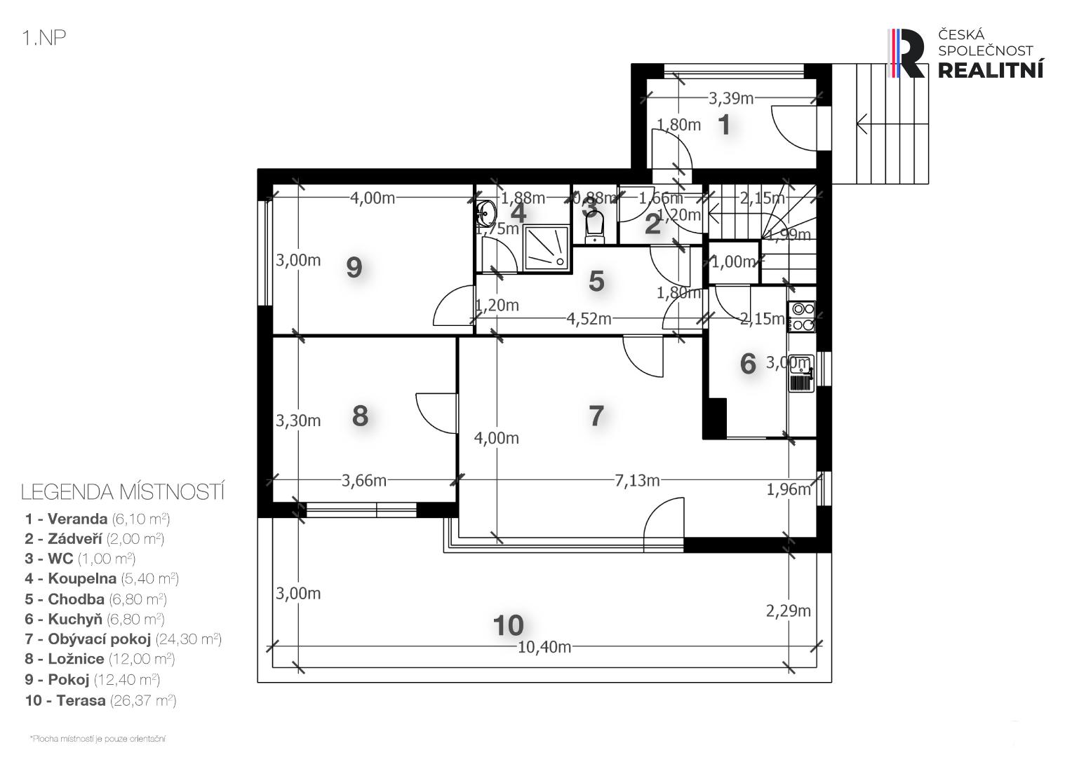
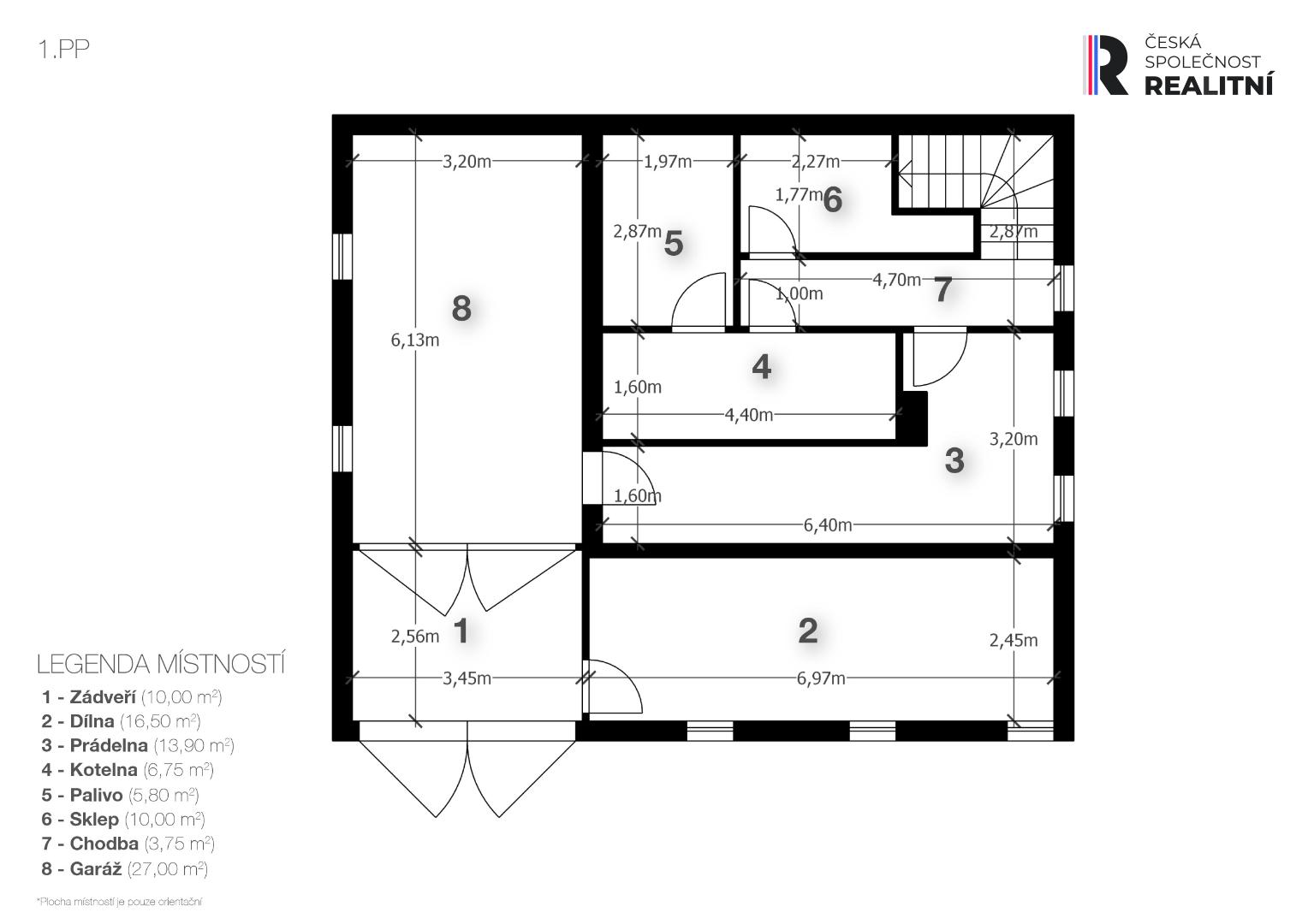
Popis staveb
Budova A
-částečně renovovaná, nová plastová okna a zateplení
-osazen moderním ekologickým kotlem H8–A se zásobníkem
-vhodné pro kancelář, firemní zázemí, ubytování
-navazuje na prostornou stodolu – ideální pro sklad či dílnu
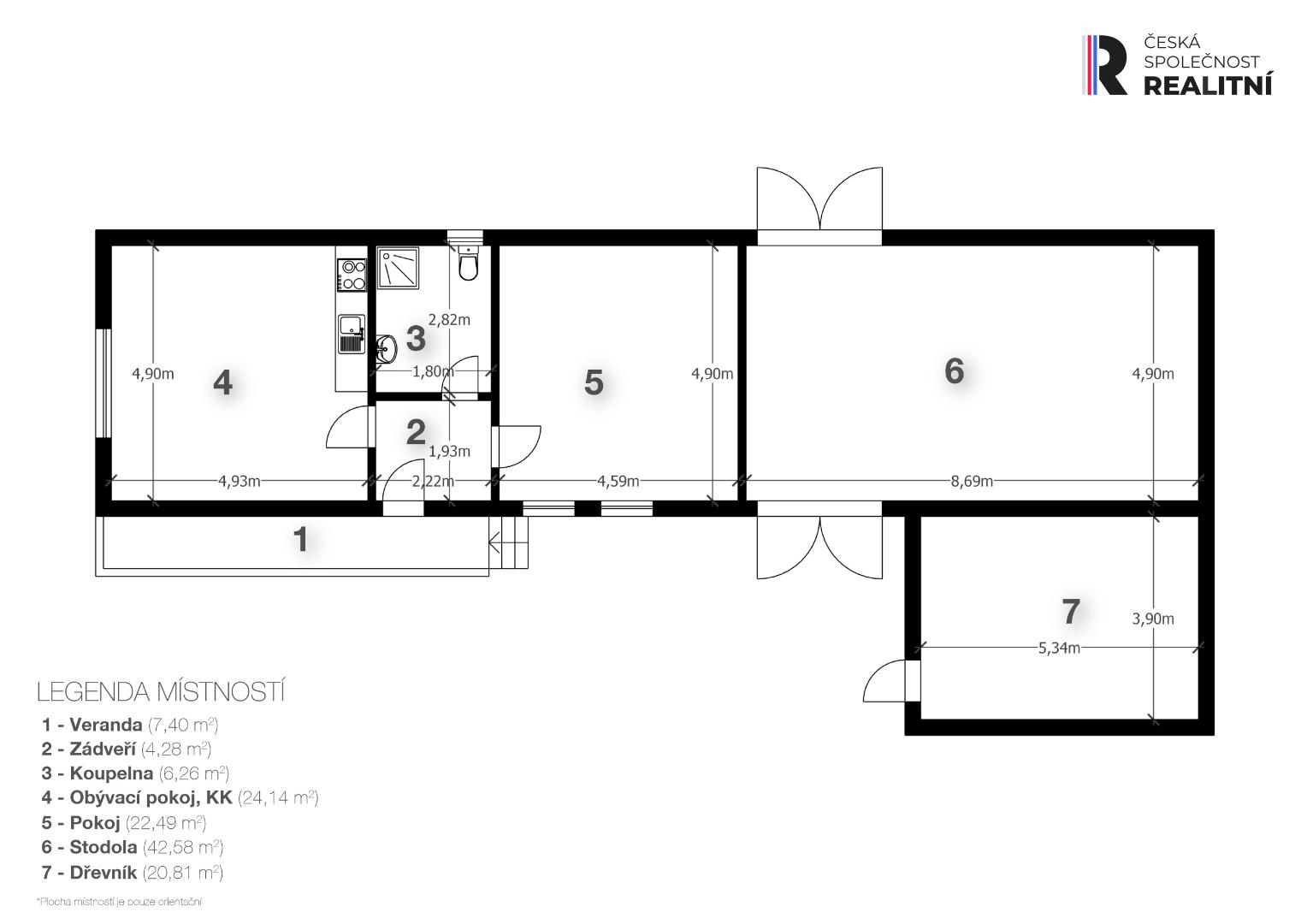
Budova B
-určena k celkové rekonstrukci
-vhodná jako dílna, sklad, garáže nebo rozšíření provozu
Technické parametry
-elektřina 3×25 A
-voda přivedena z obecní studny – zdarma
-odpady vedeny do vlastní jímky
-mírně svažitý oplocený pozemek
-přímý sjezd z komunikace E55
Pro koho je nemovitost ideální?
Pro stavební a servisní firmy, e-shopy, řemeslníky, dopravce, podnikatele s potřebou skladů či zázemí techniky, nebo investory hledající objekt s možností ubytování zaměstnanců a dalším rozvojovým potenciálem.
Energetická náročnost: třída G (PENB se připravuje).
V případě zájmu o další informace či odkaz na detailní webovou prezentaci nás kontaktujte.
V tomto článku shrneme nejdůležitější věci, které byste si měli promyslet, pokud se chystáte prodat svou nemovitost a chcete, abyste s kupujícím nemusel následně řešit vzniklé problémy.
Jako prodávající nesete rizika spojená nejen se samotným obchodem, ale i se stavem nemovitosti v době prodeje a pro minimalizaci rizik, je dobré se zamyslet nad uvedenými oblastmi.
Realitní makléř má své nezastupitelné místo v realitním obchodu. Realitním makléřem nemyslím nevzdělané jelito, které absolvovalo dvoudenní školení a ví, jak se nahraje inzerát na inzertní portál.
Realitním makléřem, který se Vám skutečně vyplatí, je zkušený profesionál, který je schopen Vám dobře poradit jak prodat za co nejvíc a s nejmenším rizikem a hlavně je Vás schopen obratně provést celým realitním obchodem.
Uživatel serveru RealityMIX.iprima.cz (dále jen „Server“) dostupného na internetové adrese (URL) https://realitymix.iprima.cz, který provozuje společnost DALTEN media s.r.o., se sídlem Na Harfě 916/9a, Praha 9, 190 00, IČO: 271 35 306 (dále jen „Správce“) jako provozovateli tohoto Serveru uděluje svůj výslovný souhlas v souladu s ustanovením § 5 zákona č. 101/2000 Sb. O ochraně osobních údajů a o změně některých zákonů, v platném znění (dále jen „zákon o ochraně osobních údajů“), se zpracováním uživatelem poskytnutých osobních údajů a dalších dat.
Uživatel poskytuje Správci osobní údaje v rozsahu: jméno, příjmení, e-mailová adresa, telefonický kontakt a další data, a to z důvodu projeveného zájmu o nemovitost, kde prostřednictvím služby Serveru Správce osloví Uživatel inzerenta uvedeného v detailu
nemovitosti - Česká Společnost Realitní / Prodej a Správa Nemovitostí s.r.o. (IČ 03310191) se zájmem o jeho služby. Tato společnost je součástí seskupení/sítě/franšízového modelu realitních kanceláří, jejich seznam můžete zobrazit kliknutím na tento odkaz.
Česká Společnost Realitní / Jura ex alto s.r.o. (IČ 29119154) , Česká Společnost Realitní / Divize nemovitostí s.r.o. (IČ 28748433) , Česká Společnost Realitní / Dagmar Jánská (IČ 67091326) , Česká Společnost Realitní / Prodej a Správa Nemovitostí s.r.o. (IČ 03310191) , Česká Společnost Realitní / ALDAMAR, s.r.o. (IČ 02745224) , Česká Společnost Realitní / Nemovitosti pozemky s.r.o. (IČ 03507301) , Česká Společnost Realitní / FRESH REALITY FINANCE, s.r.o. (IČ 01758543) , Česká Společnost Realitní / Michal Kriška (IČ 68750366) , Česká Společnost Realitní / Nemovitosti pozemky s.r.o. (Zlín) (IČ 03507301) , Česká Společnost Realitní / Hana Lerchová (IČ 71770291) , Česká Společnost Realitní / Nemovitosti pozemky s.r.o. (Znojmo) (IČ 03507301) , Česká Společnost Realitní s.r.o. (IČ 09685791)
Uživatel tyto osobní údaje poskytuje dobrovolně a bere na vědomí, že součástí služeb Správce, které Správce Uživateli poskytuje, je vyhledání všech Uživateli vyhovujících (dle parametrů - cena, typ nemovitosti, lokalita atd.) nemovitostí. Správce za tímto účelem provozuje aplikace Hlídací pes a newsletter. Tyto služby je možné z každého zaslaného emailu odhlásit. Souhlas se zpracováním osobních údajů Uživatel poskytuje Správci na dobu neurčitou s tím, že svůj udělený souhlas může Uživatel kdykoliv na drese správce info@realitymix.cz odvolat. Správce garantuje Uživateli i další práva uvedené v ustanovení §11 a §21 zákoba č. 101/200 Sb. Ve znění pozdějších předpisů.
Více informací o zpracování údajů získáte zde (realitymix.cz/zasady-ochrany-osobnich-udaju)