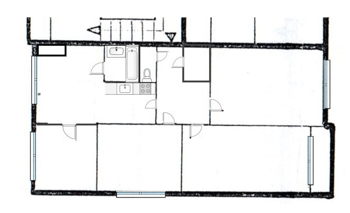
K dlouhodobému podnájmu nabízíme světlý byt o dispozici 4+1 ve Struze, Vamberk . Byt o celkové výměře 85 m² se nachází v 2. podlaží udržovaného panelového domu. K bytu náleží i praktický sklep a balkon.
Byt je nabízen nezařízený, což dává možnost uzpůsobit si interiér podle vlastního vkusu. Byt nabízí 4 neprůchozí místnosti a je tak vhodný pro početnější rodinu či spolubydlení. Majitel preferuje zájemce o dlouhodobý podnájem.
V okolí domu je kompletní občanská vybavenost – supermarket, pošta, lékařská péče, škola a školka, restaurace.
Byt je volný k nastěhování ihned.
Energetická třída: G (průkaz nedodán).
Cena:
14 000 Kč / (za měsíc)
Poznámka:
vratná jistota 14000 Kč, náklady na bydlení 7.037,- Kč, poplatek za podnájem
Uživatel serveru RealityMIX.iprima.cz (dále jen „Server“) dostupného na internetové adrese (URL) https://realitymix.iprima.cz, který provozuje společnost DALTEN media s.r.o., se sídlem Na Harfě 916/9a, Praha 9, 190 00, IČO: 271 35 306 (dále jen „Správce“) jako provozovateli tohoto Serveru uděluje svůj výslovný souhlas v souladu s ustanovením § 5 zákona č. 101/2000 Sb. O ochraně osobních údajů a o změně některých zákonů, v platném znění (dále jen „zákon o ochraně osobních údajů“), se zpracováním uživatelem poskytnutých osobních údajů a dalších dat.
Uživatel poskytuje Správci osobní údaje v rozsahu: jméno, příjmení, e-mailová adresa, telefonický kontakt a další data, a to z důvodu projeveného zájmu o nemovitost, kde prostřednictvím služby Serveru Správce osloví Uživatel inzerenta uvedeného v detailu
nemovitosti - Ideální nájemce (IČ 29300631) se zájmem o jeho služby.
Uživatel tyto osobní údaje poskytuje dobrovolně a bere na vědomí, že součástí služeb Správce, které Správce Uživateli poskytuje, je vyhledání všech Uživateli vyhovujících (dle parametrů - cena, typ nemovitosti, lokalita atd.) nemovitostí. Správce za tímto účelem provozuje aplikace Hlídací pes a newsletter. Tyto služby je možné z každého zaslaného emailu odhlásit. Souhlas se zpracováním osobních údajů Uživatel poskytuje Správci na dobu neurčitou s tím, že svůj udělený souhlas může Uživatel kdykoliv na drese správce info@realitymix.cz odvolat. Správce garantuje Uživateli i další práva uvedené v ustanovení §11 a §21 zákoba č. 101/200 Sb. Ve znění pozdějších předpisů.
Více informací o zpracování údajů získáte zde (realitymix.cz/zasady-ochrany-osobnich-udaju)