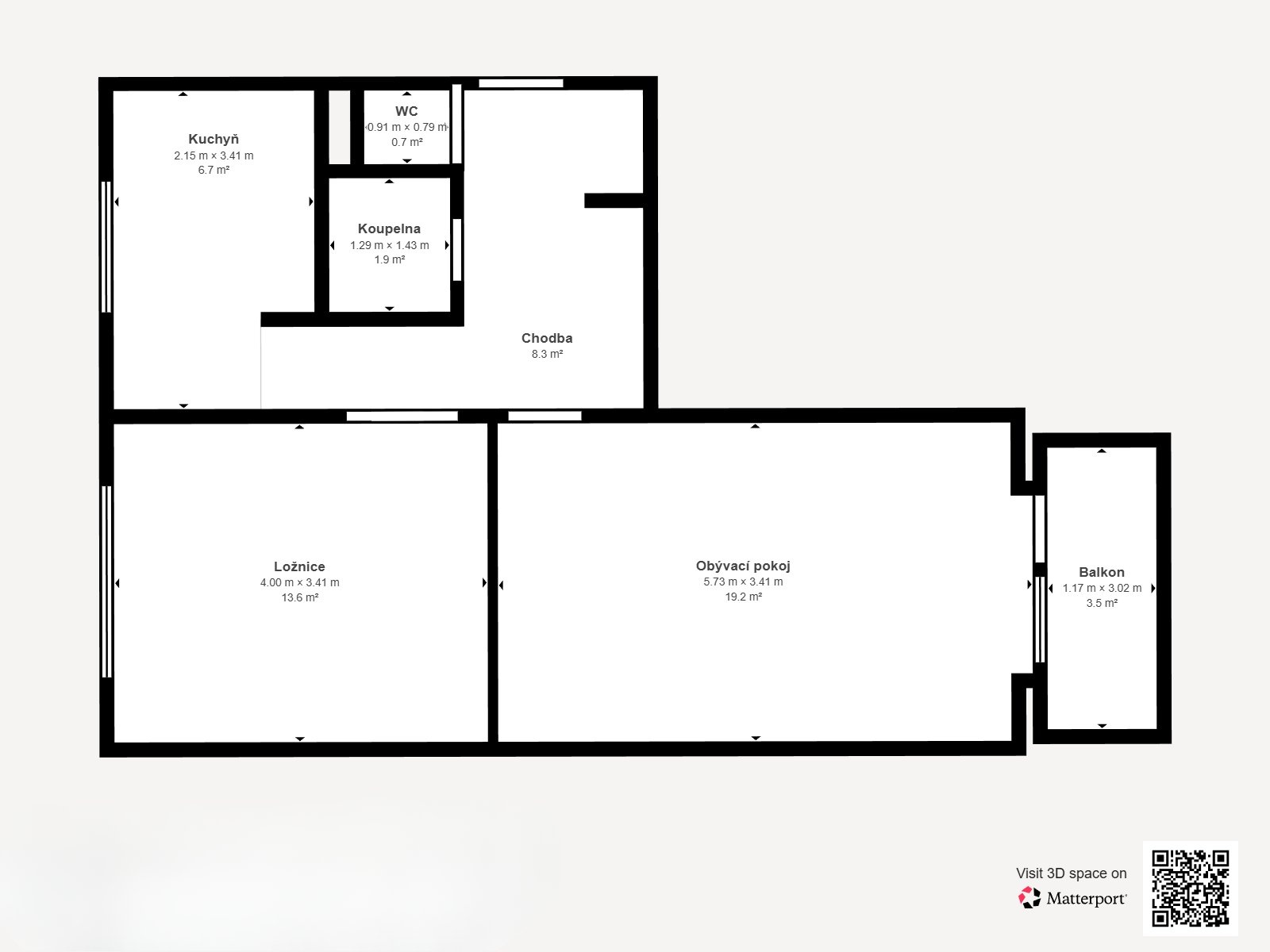
Nabízím Vám k pronájmu světlý a vkusně zrekonstruovaný byt o dispozici 2+1 a celkové ploše 52 m², který se nachází ve zvýšeném 1. NP bytového domu v klidné části Uherského Hradiště. Lokalita nabízí příjemné bydlení v zeleni a zároveň výbornou dostupnost centra města.
Základní informace:
• klidná lokalita v širším centru města
• prosvětlený a vzdušný byt
• moderní kuchyňská linka
• balkon
• sklepní kóje k dispozici
Dispozice a vybavení:
Byt má praktické dispoziční řešení. Po vstupu se po pravé straně nachází koupelna a samostatné WC, po levé straně vestavná skříň poskytující základní úložný prostor. Z chodby je vstup do všech místností bytu.
Kuchyně je vybavena moderní kuchyňskou linkou, plynovým sporákem a lednicí. Vybavení bytu je záměrně střídmé, což dává nájemci volnost zařídit si byt podle vlastního vkusu.
Obývací pokoj je prostorný, světlý a nevybavený. Je z něj vstup na balkon, ideální pro klidné posezení.
Ložnice nabízí dostatek prostoru pro úložné řešení a je orientována směrem do zeleně, s příjemným večerním sluncem.
O tepelný komfort v bytě se starají lokální topná tělesa.
Lokalita a dostupnost:
Dopravní obslužnost je zde výborná – zastávka MHD je v blízkosti domu a autobusy jezdí velmi často, prakticky každých pár minut do různých částí města.
Do centra Uherského Hradiště dojdete pěšky zhruba za 7 minut. V docházkové vzdálenosti se nachází nákupní středisko Morava, školy i nemocnice, což z této lokality dělá velmi pohodlné místo pro každodenní život.
Finanční podmínky:
• nájemné: 14 000 Kč / měsíc
• zálohy na energie: 4 631 Kč / měsíc
• vratná kauce: 19 000 Kč
• provize RK: 19 000 Kč, včetně DPH
• k nastěhování od 1. 3. 2026
Nemovitost si můžete projít už nyní pomocí 3D scanu.
Zaujala vás tato nabídka? Ozvěte se kdykoliv, rád vám poskytnu další informace nebo domluvím prohlídku.
Karel Stehlík
realitní makléř, Explicit Reality
Tento byt je nabízen k podnájmu prostřednictvím služby Explicitní Nájemník.
Díky službě Explicitní Nájemník získáváte jako nájemce vyšší standard podnájemního bydlení a celkově pohodlnější zážitek. Automaticky máte k dispozici tyto výhody:
Pojištění domácnosti a odpovědnosti za škody v běžném životě, včetně non-stop asistenční linky.
Zákaznickou podporu každý pracovní den od 8:00 do 17:00 – pro vaše dotazy, požadavky nebo pomoc s nájemní smlouvou.
Technickou asistenci – např. zajištění zámečníka, havarijní opravy či řešení jiných technických problémů v bytě.
Možnost výměny bytu – kdykoli můžete požádat o změnu na menší, větší nebo v jiné lokalitě z portfolia bytů služby Explicitní Nájemník nebo Explicit Reality.
Podnájem přes Explicitního Nájemníka je jednoduchý, bezpečný a bez zbytečných starostí. Vše potřebné máte zajištěno v rámci jednoho spolehlivého servisu.
Cena:
14 000 Kč / (za měsíc)
Poznámka:
+ služby a energie - měsíční poplatky 4 631 Kč, včetně právního servisu
Uživatel serveru RealityMIX.iprima.cz (dále jen „Server“) dostupného na internetové adrese (URL) https://realitymix.iprima.cz, který provozuje společnost DALTEN media s.r.o., se sídlem Na Harfě 916/9a, Praha 9, 190 00, IČO: 271 35 306 (dále jen „Správce“) jako provozovateli tohoto Serveru uděluje svůj výslovný souhlas v souladu s ustanovením § 5 zákona č. 101/2000 Sb. O ochraně osobních údajů a o změně některých zákonů, v platném znění (dále jen „zákon o ochraně osobních údajů“), se zpracováním uživatelem poskytnutých osobních údajů a dalších dat.
Uživatel poskytuje Správci osobní údaje v rozsahu: jméno, příjmení, e-mailová adresa, telefonický kontakt a další data, a to z důvodu projeveného zájmu o nemovitost, kde prostřednictvím služby Serveru Správce osloví Uživatel inzerenta uvedeného v detailu
nemovitosti - EXPLICIT REALITY, s.r.o. (IČ 06816860) se zájmem o jeho služby. Tato společnost je součástí seskupení/sítě/franšízového modelu realitních kanceláří, jejich seznam můžete zobrazit kliknutím na tento odkaz.
Explicit reality, Brno (IČ 76193403) , EXPLICIT REALITY, s.r.o. (IČ 06816860)
Uživatel tyto osobní údaje poskytuje dobrovolně a bere na vědomí, že součástí služeb Správce, které Správce Uživateli poskytuje, je vyhledání všech Uživateli vyhovujících (dle parametrů - cena, typ nemovitosti, lokalita atd.) nemovitostí. Správce za tímto účelem provozuje aplikace Hlídací pes a newsletter. Tyto služby je možné z každého zaslaného emailu odhlásit. Souhlas se zpracováním osobních údajů Uživatel poskytuje Správci na dobu neurčitou s tím, že svůj udělený souhlas může Uživatel kdykoliv na drese správce info@realitymix.cz odvolat. Správce garantuje Uživateli i další práva uvedené v ustanovení §11 a §21 zákoba č. 101/200 Sb. Ve znění pozdějších předpisů.
Více informací o zpracování údajů získáte zde (realitymix.cz/zasady-ochrany-osobnich-udaju)