Pronájem skladu, výrobních prostor 1.416 m², Tuchoměřice, Praha - Západ
Pronájem skladu, výrobních prostor 1416 m² Tuchoměřice.
V zastoupení majitele a bez provize nabízíme industriální prostory vhodné pro sklad nebo výrobu, umístěné na strategickém místě nedaleko Letiště Václava Havla, s výbornou dostupností na dálnici D7 a do Prahy.
- výrobní prostory, logistické centrum, sídla firem, výzkumné prostory, školící centra a kanceláře
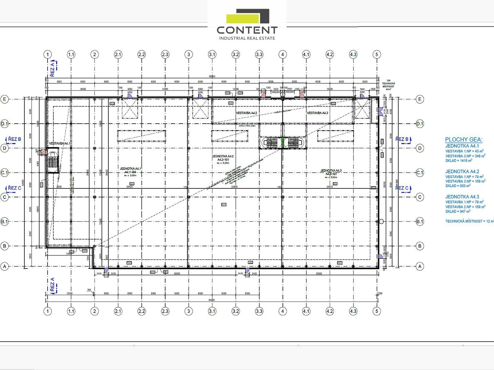
- hala (A4) 3296 m² ve výstavbě, k dispozici 02/2026
- světlá výška od 5 m
- nosnost podlahy minimálně 5 t/m²
- 3 vjezdy v úrovni vozovky
- LED osvětlení, sprinklery
- moderní, úsporná budova s certifikátem udržitelnosti BREEAM
- kancelářské a sociální zázemí dle potřeby
- objekt je možné rozdělit na samostatné jednotky:
• 947 m² skladové plochy + kanceláře
• 933 m² skladové plochy + kanceláře
• 1 416 m² skladové plochy + kanceláře
- oplocený areál s ostrahou
Cena bude stanovena dle dalších požadavků individuálně.
Fotografie jsou pouze ilustrativní. Pro více informací nás kontaktujte.
Uživatel serveru RealityMIX.iprima.cz (dále jen „Server“) dostupného na internetové adrese (URL) https://realitymix.iprima.cz, který provozuje společnost DALTEN media s.r.o., se sídlem Na Harfě 916/9a, Praha 9, 190 00, IČO: 271 35 306 (dále jen „Správce“) jako provozovateli tohoto Serveru uděluje svůj výslovný souhlas v souladu s ustanovením § 5 zákona č. 101/2000 Sb. O ochraně osobních údajů a o změně některých zákonů, v platném znění (dále jen „zákon o ochraně osobních údajů“), se zpracováním uživatelem poskytnutých osobních údajů a dalších dat.
Uživatel poskytuje Správci osobní údaje v rozsahu: jméno, příjmení, e-mailová adresa, telefonický kontakt a další data, a to z důvodu projeveného zájmu o nemovitost, kde prostřednictvím služby Serveru Správce osloví Uživatel inzerenta uvedeného v detailu
nemovitosti - CONTENT REALITY s.r.o. (IČ 04001613) se zájmem o jeho služby.
Uživatel tyto osobní údaje poskytuje dobrovolně a bere na vědomí, že součástí služeb Správce, které Správce Uživateli poskytuje, je vyhledání všech Uživateli vyhovujících (dle parametrů - cena, typ nemovitosti, lokalita atd.) nemovitostí. Správce za tímto účelem provozuje aplikace Hlídací pes a newsletter. Tyto služby je možné z každého zaslaného emailu odhlásit. Souhlas se zpracováním osobních údajů Uživatel poskytuje Správci na dobu neurčitou s tím, že svůj udělený souhlas může Uživatel kdykoliv na drese správce info@realitymix.cz odvolat. Správce garantuje Uživateli i další práva uvedené v ustanovení §11 a §21 zákoba č. 101/200 Sb. Ve znění pozdějších předpisů.
Více informací o zpracování údajů získáte zde (realitymix.cz/zasady-ochrany-osobnich-udaju)