Prodej pozemku o rozloze 974 m2, s platným stavebním povolením a projektem RD, Štíty - Heroltice
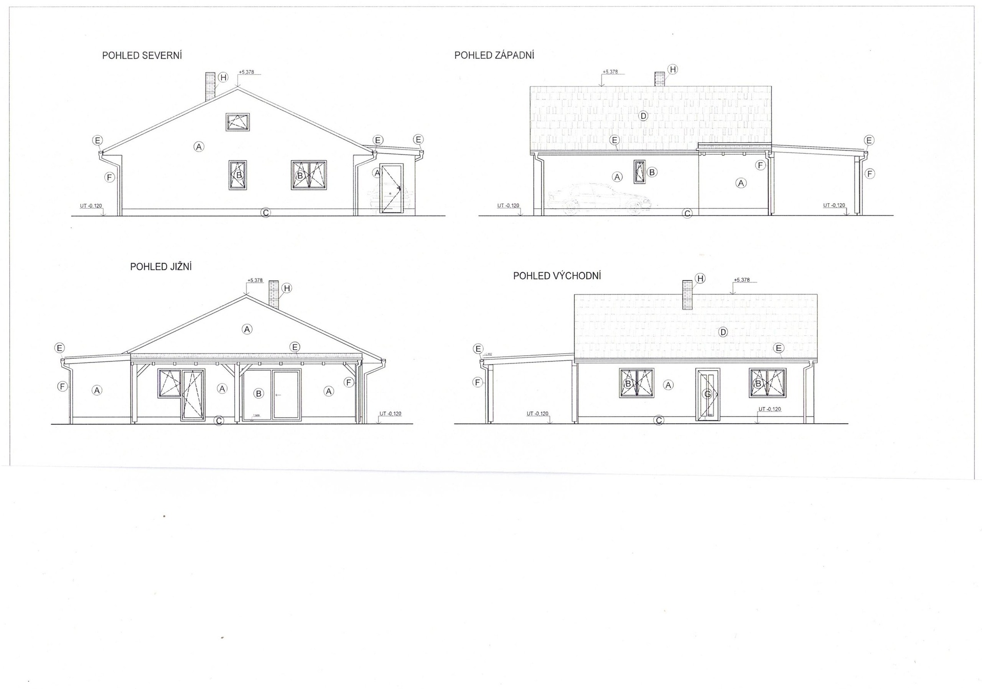
Prodej pozemku pro bydlení, s platným stavebním povolením a vypracovaným projektem přízemního rodinného domu se sedlovou střechou, o dispozici 4+kk s terasou a zpevněnou parkovací plochou pro 2 automobily. Stavbu je možné okamžitě zahájit.
Jedná se o pozemek o celkové rozloze 974 m2 ve tvaru písmene L, delší část o šíři 68 m přiléhá k cestě.
Pozemek sestává ze dvou parcel o výměrách 194 m2 (na KÚ vedená jako zastavěná plocha a nádvoří) a 780 m2 (na KÚ vedená jako trvalý travní porost), z nichž 112 m2, navazujících na stavební parcelu je vyjmuto z půdního fondu.
Pozemek je rovinatý, skýtá krásný výhled do širokého okolí.
Na pozemku je nově zbudovaná přípojka elektřiny a vodovodní přípojka. Plyn a kanalizace v této části obce není, v projektu RD je počítáno s jímkou odpadních vod, pro vytápění s kombinací elektrického kotle a krbu s výměníkem.
Podrobné informace k projektové dokumentaci jsou k dispozici v RK.
Společnost ČEZ plánuje instalaci nového vedení vysokého napětí mezi obcemi Horní Heřmanice a Králíky, které by mělo vést i přes jeden z prodávaných pozemků, nicméně v dostatečné vzdálenosti - respektující ochranné pásmo - od místa, určeného pro výstavbu RD. Umístění nejbližšího sloupu pro vedení VN je plánované ve vzdálenosti 120 m os pozemků. Výkres plánované trasy el. vedení, včetně plánovaného umístění sloupů, je k dispozici v RK.
Město Štíty leží na východním výběžku Orlických hor a současně nedaleko jesenického podhůří. Přímo v části obce Heroltice, ve které se pozemek nachází, je k dispozici restaurace s penzionem, kulturní dům, kostel a menší lyžařský vlek, větší lyžařské středisko Buková Hora - červená Hora/Čenkovice je vzdálené 3 km od Heroltic.
Ve Štítech jsou pak k dispozici další obchody, služby, mateřská a základní škola, informační centrum, skautský oddíl, TJ Sokol a další zájmové kroužky a také Acrobat park Aleše Valenty.
V širším okolí je pak mnoho zajímavých, atraktivních míst, vyhledávaných turisty, cyklisty, i sportovci, lyžařský resort Dolní Morava s bobovou dráhou, Stezkou v oblacích, visutým mostem Sky Bridge 721, atd., je vzdálený přibližně 25 km.
Nemovitost je tedy vhodná pro výstavbu objektu určeného k trvalému bydlení, k rekreaci i k investici - objektu k turistickým pronájmům.
V tomto článku shrneme nejdůležitější věci, které byste si měli promyslet, pokud se chystáte prodat svou nemovitost a chcete, abyste s kupujícím nemusel následně řešit vzniklé problémy.
Jako prodávající nesete rizika spojená nejen se samotným obchodem, ale i se stavem nemovitosti v době prodeje a pro minimalizaci rizik, je dobré se zamyslet nad uvedenými oblastmi.
Realitní makléř má své nezastupitelné místo v realitním obchodu. Realitním makléřem nemyslím nevzdělané jelito, které absolvovalo dvoudenní školení a ví, jak se nahraje inzerát na inzertní portál.
Realitním makléřem, který se Vám skutečně vyplatí, je zkušený profesionál, který je schopen Vám dobře poradit jak prodat za co nejvíc a s nejmenším rizikem a hlavně je Vás schopen obratně provést celým realitním obchodem.
Uživatel serveru RealityMIX.iprima.cz (dále jen „Server“) dostupného na internetové adrese (URL) https://realitymix.iprima.cz, který provozuje společnost DALTEN media s.r.o., se sídlem Na Harfě 916/9a, Praha 9, 190 00, IČO: 271 35 306 (dále jen „Správce“) jako provozovateli tohoto Serveru uděluje svůj výslovný souhlas v souladu s ustanovením § 5 zákona č. 101/2000 Sb. O ochraně osobních údajů a o změně některých zákonů, v platném znění (dále jen „zákon o ochraně osobních údajů“), se zpracováním uživatelem poskytnutých osobních údajů a dalších dat.
Uživatel poskytuje Správci osobní údaje v rozsahu: jméno, příjmení, e-mailová adresa, telefonický kontakt a další data, a to z důvodu projeveného zájmu o nemovitost, kde prostřednictvím služby Serveru Správce osloví Uživatel inzerenta uvedeného v detailu
nemovitosti - Dialog Reality (IČ 68767943) se zájmem o jeho služby.
Uživatel tyto osobní údaje poskytuje dobrovolně a bere na vědomí, že součástí služeb Správce, které Správce Uživateli poskytuje, je vyhledání všech Uživateli vyhovujících (dle parametrů - cena, typ nemovitosti, lokalita atd.) nemovitostí. Správce za tímto účelem provozuje aplikace Hlídací pes a newsletter. Tyto služby je možné z každého zaslaného emailu odhlásit. Souhlas se zpracováním osobních údajů Uživatel poskytuje Správci na dobu neurčitou s tím, že svůj udělený souhlas může Uživatel kdykoliv na drese správce info@realitymix.cz odvolat. Správce garantuje Uživateli i další práva uvedené v ustanovení §11 a §21 zákoba č. 101/200 Sb. Ve znění pozdějších předpisů.
Více informací o zpracování údajů získáte zde (realitymix.cz/zasady-ochrany-osobnich-udaju)