Pronájem nově vybudované skladovací haly se zázemím
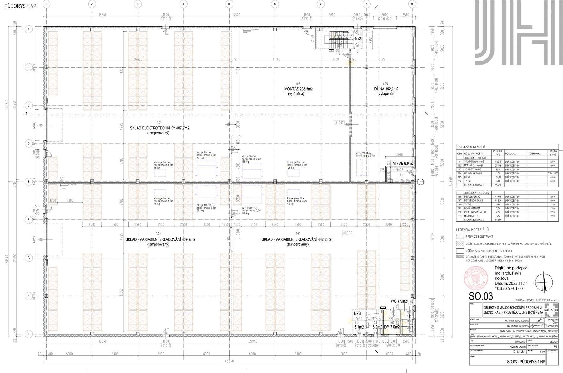
Nabízíme k pronájmu polovinu skladovací haly se zázemím nacházející se v jižní části města Prostějova s dobrou dopravní dostupností na dálnici Olomouc – Brno. Hala bude dokončena v září 2026, vel. skladovacích prostor 1.000 m2, rozměry 20,4 x 48,9 m. Kancelář, denní místnost zaměstnanců a sociální zařízení bude k dispozici v 2. NP haly, soc. zařízení bude i v 1. NP. Výška skladovacích regálů je 4,8 m, vrata pro vjezd do haly o s. v. 4 m. Skeletová konstrukce haly, leštěná betonová podlaha, temperovaný skladovací prostor. Výborná poloha v průmyslovém areálu, parkování před objektem. Vzdálenost k dálničnímu přivaděči směr Brno – 1 km.
Uživatel serveru RealityMIX.iprima.cz (dále jen „Server“) dostupného na internetové adrese (URL) https://realitymix.iprima.cz, který provozuje společnost DALTEN media s.r.o., se sídlem Na Harfě 916/9a, Praha 9, 190 00, IČO: 271 35 306 (dále jen „Správce“) jako provozovateli tohoto Serveru uděluje svůj výslovný souhlas v souladu s ustanovením § 5 zákona č. 101/2000 Sb. O ochraně osobních údajů a o změně některých zákonů, v platném znění (dále jen „zákon o ochraně osobních údajů“), se zpracováním uživatelem poskytnutých osobních údajů a dalších dat.
Uživatel poskytuje Správci osobní údaje v rozsahu: jméno, příjmení, e-mailová adresa, telefonický kontakt a další data, a to z důvodu projeveného zájmu o nemovitost, kde prostřednictvím služby Serveru Správce osloví Uživatel inzerenta uvedeného v detailu
nemovitosti - JH REALITY (IČ 45443769) se zájmem o jeho služby.
Uživatel tyto osobní údaje poskytuje dobrovolně a bere na vědomí, že součástí služeb Správce, které Správce Uživateli poskytuje, je vyhledání všech Uživateli vyhovujících (dle parametrů - cena, typ nemovitosti, lokalita atd.) nemovitostí. Správce za tímto účelem provozuje aplikace Hlídací pes a newsletter. Tyto služby je možné z každého zaslaného emailu odhlásit. Souhlas se zpracováním osobních údajů Uživatel poskytuje Správci na dobu neurčitou s tím, že svůj udělený souhlas může Uživatel kdykoliv na drese správce info@realitymix.cz odvolat. Správce garantuje Uživateli i další práva uvedené v ustanovení §11 a §21 zákoba č. 101/200 Sb. Ve znění pozdějších předpisů.
Více informací o zpracování údajů získáte zde (realitymix.cz/zasady-ochrany-osobnich-udaju)