Pronájem kanceláře 30 m² vč. příslušenství a parkování – Příbram, K Podlesí
Nabízíme pronájem moderní a nově zrekonstruované kanceláře o výměře 30 m² v administrativní budově areálu P.P.P., v průmyslové zóně na okraji Příbrami.
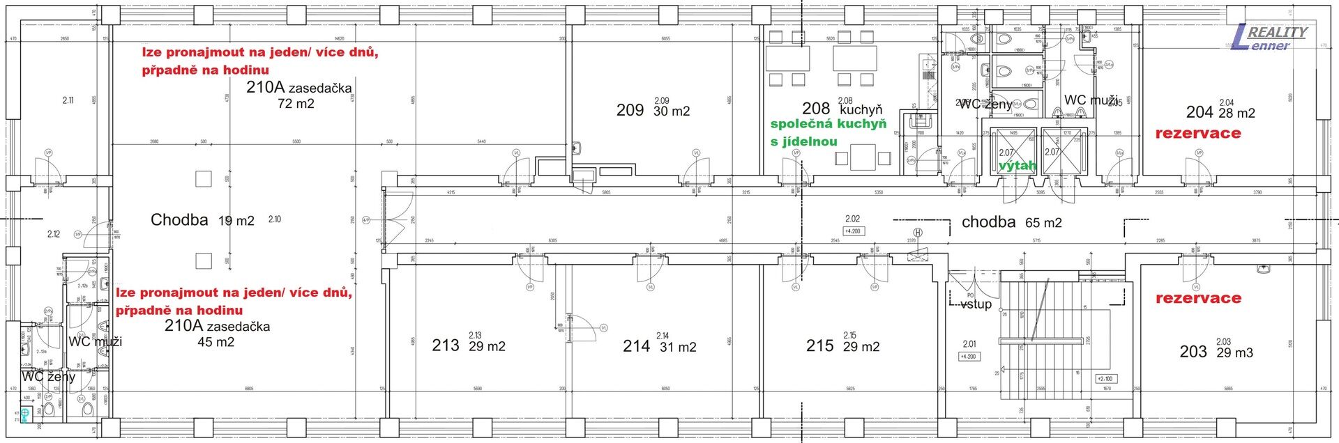
Budova po kompletní rekonstrukci nabízí:
• nový výtah
• společné kuchyně a jídelny na patrech
• oddělené moderní toalety
• možnost parkování před areálem pro uživatele kanceláří
• za příplatek využití zasedacích místností 45 m² a 72 m² (den/ hodiny)
Aktuálně volné kanceláře:
1. patro: 29 m², 30 m², průchozí 29 + 30 m²
3. patro: 14,5 m², 28 m², 2× 29 m², 31 m²
4. a 5. patro: před rekonstrukcí, úpravy možné dle přání nájemce (dlouhodobý nájem)
Další výhody:
• čisté, nové a moderní prostory na klidném a hezkém místě na okraji Příbrami
• internet v ceně nájmu (vyšší rychlost za příplatek)
• centrální vytápění
• snadná dostupnost po veřejné komunikaci, výborná dostupnost do Prahy
• hlídaný areál (vlastní vrátnice, non stop provoz)
• v budoucnu v přízemí recepce u vchodu
Podmínky nájmu:
• volné ihned / dle dohody
• hradí se: první nájem vč. záloh, vratná kauce (dle dohody) a provize RK ve výši jedno nájmu
• PENB se připravuje, prozatím třída G
• majitel si vyhrazuje právo výběru nájemce
Uživatel serveru RealityMIX.iprima.cz (dále jen „Server“) dostupného na internetové adrese (URL) https://realitymix.iprima.cz, který provozuje společnost DALTEN media s.r.o., se sídlem Na Harfě 916/9a, Praha 9, 190 00, IČO: 271 35 306 (dále jen „Správce“) jako provozovateli tohoto Serveru uděluje svůj výslovný souhlas v souladu s ustanovením § 5 zákona č. 101/2000 Sb. O ochraně osobních údajů a o změně některých zákonů, v platném znění (dále jen „zákon o ochraně osobních údajů“), se zpracováním uživatelem poskytnutých osobních údajů a dalších dat.
Uživatel poskytuje Správci osobní údaje v rozsahu: jméno, příjmení, e-mailová adresa, telefonický kontakt a další data, a to z důvodu projeveného zájmu o nemovitost, kde prostřednictvím služby Serveru Správce osloví Uživatel inzerenta uvedeného v detailu
nemovitosti - Tomáš Lenner (IČ 86982125) se zájmem o jeho služby.
Uživatel tyto osobní údaje poskytuje dobrovolně a bere na vědomí, že součástí služeb Správce, které Správce Uživateli poskytuje, je vyhledání všech Uživateli vyhovujících (dle parametrů - cena, typ nemovitosti, lokalita atd.) nemovitostí. Správce za tímto účelem provozuje aplikace Hlídací pes a newsletter. Tyto služby je možné z každého zaslaného emailu odhlásit. Souhlas se zpracováním osobních údajů Uživatel poskytuje Správci na dobu neurčitou s tím, že svůj udělený souhlas může Uživatel kdykoliv na drese správce info@realitymix.cz odvolat. Správce garantuje Uživateli i další práva uvedené v ustanovení §11 a §21 zákoba č. 101/200 Sb. Ve znění pozdějších předpisů.
Více informací o zpracování údajů získáte zde (realitymix.cz/zasady-ochrany-osobnich-udaju)