Vybavené moderní kanceláře k pronájmu v srdci Karlína
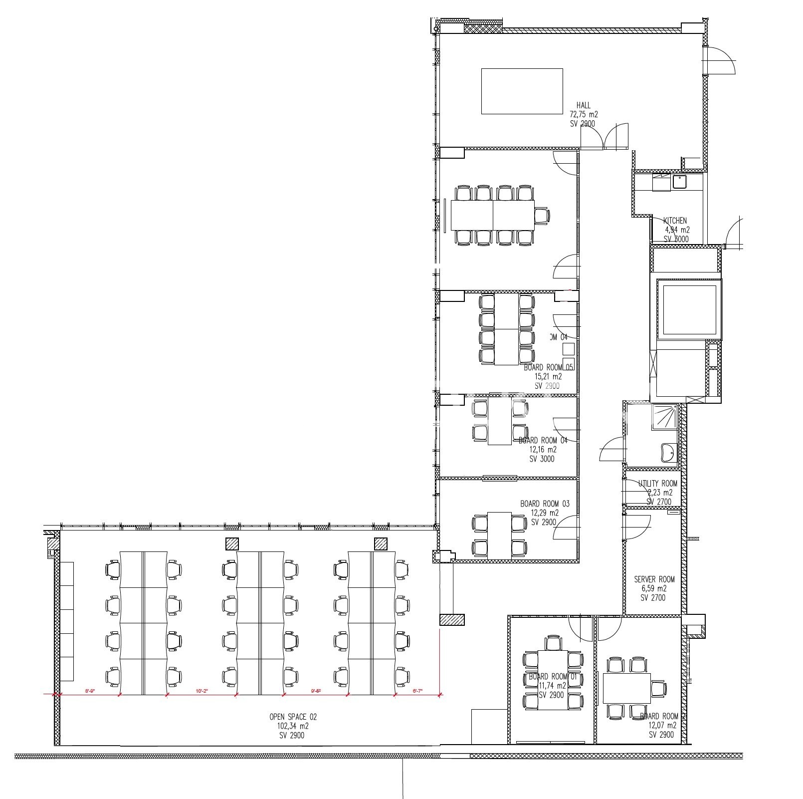
K pronájmu nabízíme kancelářské prostory na výjimečné adrese v Karlíně, které se nacházejí v prvním patře budovy Karolína Plazza. Celková plocha činí 288,6 m² a je dispozičně řešena jako jeden velký open space pro přibližně 24 osob, doplněný o šest samostatných místností, které slouží jako zasedací místnosti.
Součástí prostoru je plně vybavená kuchyňka, chill zóna a také akustická budka vhodná pro telefonování. Kanceláře jsou k dispozici kompletně vybavené, přesně tak, jak je vidět na fotografiích.
K pronájmu je možné získat také až tři parkovací místa za poplatek 3 550 Kč + DPH / měsíc za jedno stání. Nájemné činí 625 Kč/m² + DPH.
Prostory jsou k dispozici ihned. V případě zájmu nebo potřeby dalších informací nás neváhejte kontaktovat.
Uživatel serveru RealityMIX.iprima.cz (dále jen „Server“) dostupného na internetové adrese (URL) https://realitymix.iprima.cz, který provozuje společnost DALTEN media s.r.o., se sídlem Na Harfě 916/9a, Praha 9, 190 00, IČO: 271 35 306 (dále jen „Správce“) jako provozovateli tohoto Serveru uděluje svůj výslovný souhlas v souladu s ustanovením § 5 zákona č. 101/2000 Sb. O ochraně osobních údajů a o změně některých zákonů, v platném znění (dále jen „zákon o ochraně osobních údajů“), se zpracováním uživatelem poskytnutých osobních údajů a dalších dat.
Uživatel poskytuje Správci osobní údaje v rozsahu: jméno, příjmení, e-mailová adresa, telefonický kontakt a další data, a to z důvodu projeveného zájmu o nemovitost, kde prostřednictvím služby Serveru Správce osloví Uživatel inzerenta uvedeného v detailu
nemovitosti - ENGEL & VÖLKERS (IČ 27533328) se zájmem o jeho služby.
Uživatel tyto osobní údaje poskytuje dobrovolně a bere na vědomí, že součástí služeb Správce, které Správce Uživateli poskytuje, je vyhledání všech Uživateli vyhovujících (dle parametrů - cena, typ nemovitosti, lokalita atd.) nemovitostí. Správce za tímto účelem provozuje aplikace Hlídací pes a newsletter. Tyto služby je možné z každého zaslaného emailu odhlásit. Souhlas se zpracováním osobních údajů Uživatel poskytuje Správci na dobu neurčitou s tím, že svůj udělený souhlas může Uživatel kdykoliv na drese správce info@realitymix.cz odvolat. Správce garantuje Uživateli i další práva uvedené v ustanovení §11 a §21 zákoba č. 101/200 Sb. Ve znění pozdějších předpisů.
Více informací o zpracování údajů získáte zde (realitymix.cz/zasady-ochrany-osobnich-udaju)