Variabilní a světlé kancelářské prostory v prestižním Slovanském domě na Praze 1
K pronájmu nabízíme velmi vzdušné moderní kancelářské prostory o velikosti 179 m2, situované v 5. patře (6. nadzemním podlaží) Slovanského domu v ulici Na Příkopě, v oblasti Prahy 1 - Nové Město.
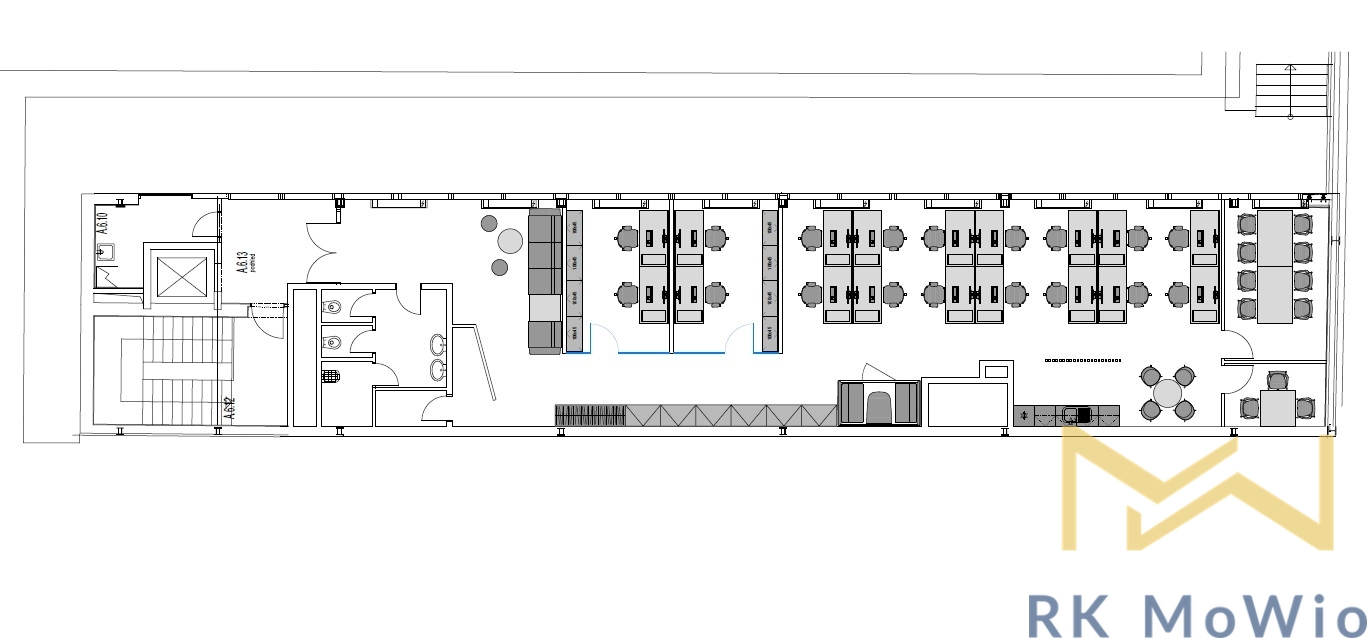
Prostor umožňuje přizpůsobit interiér potřebám a stylu Vaší firmy – od otevřených kanceláří ve stylu open space, přes menší samostatné místnosti, až po jejich kombinaci. Kancelář disponuje dvěma toaletami a praktickou menší úložnou místností. Dle půdorysu ve fotodokumentaci je možné uspořádat například čtyři zasedací místnosti, jednu větší open-space kancelář a také kuchyňku. Navzdory rušné lokalitě nabízí Slovanský dům klidné pracovní prostředí s moderním zázemím a výhledem do jedinečné zahrady se vzrostlými platany a sochou od renomovaného umělce Federica Díaze. Možnost pronajmout parkovací stání za extra příplatek 350,- EUR/měsíc bez DPH 21%, celkem s DPH 21% = 423,- EUR/měsíc.
Lokalita se vyznačuje vynikající dopravní dostupností – v bezprostřední blízkosti se nacházejí stanice metra Můstek (linka A/B) a Náměstí Republiky (linka B), stejně jako několik tramvajových linek v docházkové vzdálenosti. Strategická poloha v samotném centru Prahy zároveň umožňuje snadné napojení na hlavní pražské dopravní tepny a rychlý přístup k nájezdům na D1, D5, D8 i na Pražský městský okruh.
Měsíční nájemné činí 22,50,- EUR/m2/měsíc bez DPH = cca. 4.027,-EUR/měsíc bez DPH, celkem s DPH 21% = 4.873,- EUR/měsíc, poplatky 170,- Kč/m2/měsíc = cca. 30.430,- Kč/měsíc bez DPH, celkem s DPH 21% = 36.820,- Kč/měsíc. Požadovaná jistota (kauce) ve výši tří měsíčních nájmů včetně servisních poplatků.
Třída energetické náročnosti budovy je dle vyhlášky 78/2013 Sb. klasifikována G.
Uživatel serveru RealityMIX.iprima.cz (dále jen „Server“) dostupného na internetové adrese (URL) https://realitymix.iprima.cz, který provozuje společnost DALTEN media s.r.o., se sídlem Na Harfě 916/9a, Praha 9, 190 00, IČO: 271 35 306 (dále jen „Správce“) jako provozovateli tohoto Serveru uděluje svůj výslovný souhlas v souladu s ustanovením § 5 zákona č. 101/2000 Sb. O ochraně osobních údajů a o změně některých zákonů, v platném znění (dále jen „zákon o ochraně osobních údajů“), se zpracováním uživatelem poskytnutých osobních údajů a dalších dat.
Uživatel poskytuje Správci osobní údaje v rozsahu: jméno, příjmení, e-mailová adresa, telefonický kontakt a další data, a to z důvodu projeveného zájmu o nemovitost, kde prostřednictvím služby Serveru Správce osloví Uživatel inzerenta uvedeného v detailu
nemovitosti - RK MoWio s.r.o. (IČ 11880856) se zájmem o jeho služby.
Uživatel tyto osobní údaje poskytuje dobrovolně a bere na vědomí, že součástí služeb Správce, které Správce Uživateli poskytuje, je vyhledání všech Uživateli vyhovujících (dle parametrů - cena, typ nemovitosti, lokalita atd.) nemovitostí. Správce za tímto účelem provozuje aplikace Hlídací pes a newsletter. Tyto služby je možné z každého zaslaného emailu odhlásit. Souhlas se zpracováním osobních údajů Uživatel poskytuje Správci na dobu neurčitou s tím, že svůj udělený souhlas může Uživatel kdykoliv na drese správce info@realitymix.cz odvolat. Správce garantuje Uživateli i další práva uvedené v ustanovení §11 a §21 zákoba č. 101/200 Sb. Ve znění pozdějších předpisů.
Více informací o zpracování údajů získáte zde (realitymix.cz/zasady-ochrany-osobnich-udaju)