Dovoluji si Vám nabídnout k pronájmu prostorný reprezentativní byt 5+1 s malým balkonem s možností využití jako kanceláře v centru Prahy v ul. Na Perštýně. Byt se nachází v těsné blízkosti zastávky Národní třída a Můstek, přímo u obchodního domu Máj a Quadrio.
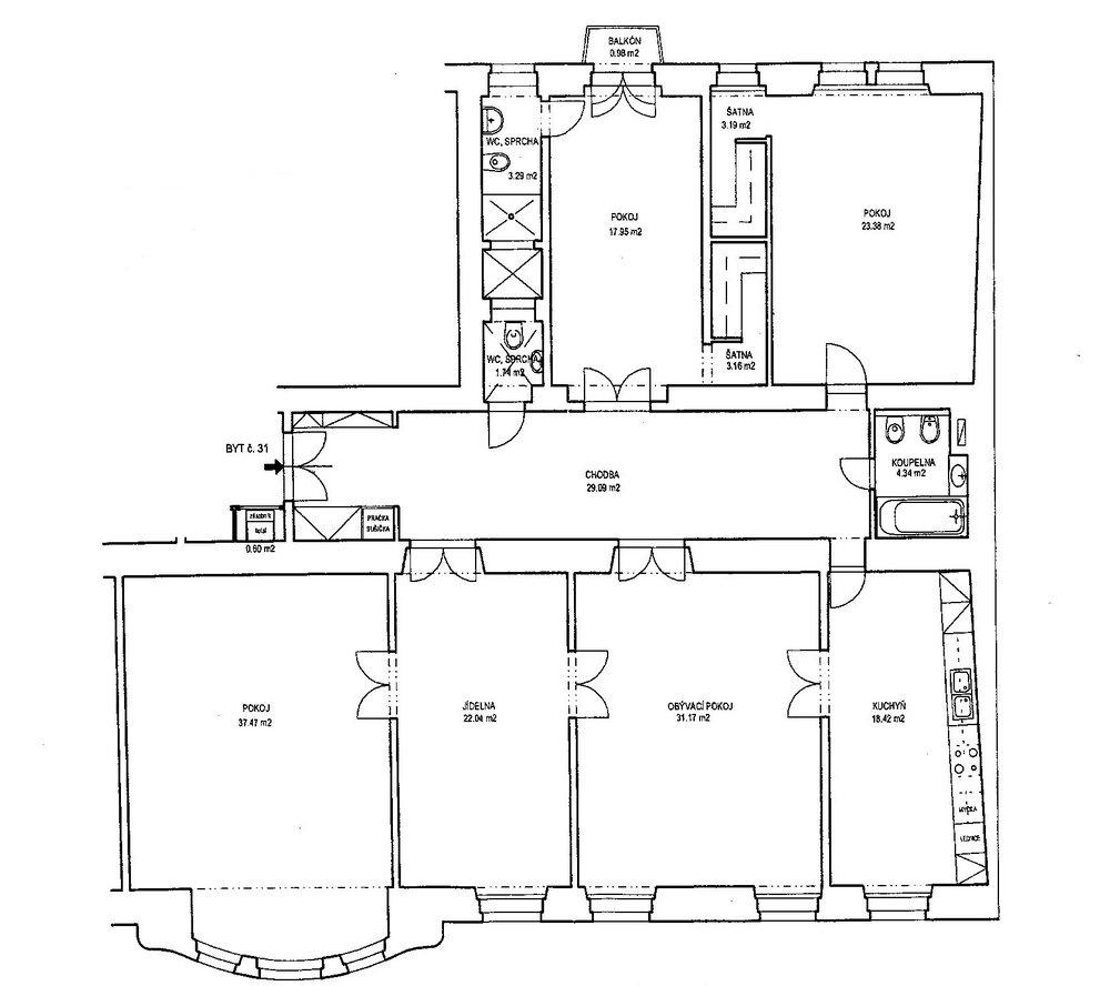
Byt je situován ve 3.patře renovovaného secesního domu s výtahem. Celková plocha činí 197 m2 a sestává ze vstupní haly, 5t- místností, kuchyně, 2x koupelnou, 3x WC. Kuchyně je vybavena kuch. linkou se zabudovanými spotřebiči, Vytápění je samostatným plynovým kotlem. V bytě jsou masivní parkety, zdobené štukové stropy, dvoukřídlé dveře.
Byt lze využít k bydlení i k podnikání. Pronájem za účelem krátkodobých podnájmů není možný.
Měsíční paušál na domovní služby činí 900 Kč/os, záloha na vodu je 350 Kč/os/měs., elektřina a plyn v bytě se přehlašuje na nájemníka. Majitelé požadují kauci ve výši 2 nájmů, provize je 1 nájem.
K dispozici od července 2026, prohlídky jsou možné po dohodě předem.
Cena:
96 000 Kč / (za měsíc)
Poznámka:
+ poplatky 1.250 Kč/os/měs, energie se přehlašují na nájemce, provize 1 nájem
Uživatel serveru RealityMIX.iprima.cz (dále jen „Server“) dostupného na internetové adrese (URL) https://realitymix.iprima.cz, který provozuje společnost DALTEN media s.r.o., se sídlem Na Harfě 916/9a, Praha 9, 190 00, IČO: 271 35 306 (dále jen „Správce“) jako provozovateli tohoto Serveru uděluje svůj výslovný souhlas v souladu s ustanovením § 5 zákona č. 101/2000 Sb. O ochraně osobních údajů a o změně některých zákonů, v platném znění (dále jen „zákon o ochraně osobních údajů“), se zpracováním uživatelem poskytnutých osobních údajů a dalších dat.
Uživatel poskytuje Správci osobní údaje v rozsahu: jméno, příjmení, e-mailová adresa, telefonický kontakt a další data, a to z důvodu projeveného zájmu o nemovitost, kde prostřednictvím služby Serveru Správce osloví Uživatel inzerenta uvedeného v detailu
nemovitosti - Realitní agentura Starlet (IČ 27170934) se zájmem o jeho služby.
Uživatel tyto osobní údaje poskytuje dobrovolně a bere na vědomí, že součástí služeb Správce, které Správce Uživateli poskytuje, je vyhledání všech Uživateli vyhovujících (dle parametrů - cena, typ nemovitosti, lokalita atd.) nemovitostí. Správce za tímto účelem provozuje aplikace Hlídací pes a newsletter. Tyto služby je možné z každého zaslaného emailu odhlásit. Souhlas se zpracováním osobních údajů Uživatel poskytuje Správci na dobu neurčitou s tím, že svůj udělený souhlas může Uživatel kdykoliv na drese správce info@realitymix.cz odvolat. Správce garantuje Uživateli i další práva uvedené v ustanovení §11 a §21 zákoba č. 101/200 Sb. Ve znění pozdějších předpisů.
Více informací o zpracování údajů získáte zde (realitymix.cz/zasady-ochrany-osobnich-udaju)