Pronájem ubytovacího zařízení 626 m, ulice Přátelství, Praha - Uhříněves.
Pronájem nebytového prostoru, 626 m and sup2; Praha 22, Uhříněves, ul. Přátelství
K pronájmu je administrativní budova o celkové ploše 718,96 m and sup2;, která je součástí dobře udržovaného areálu s výrobními objekty a sklady. Areál má výbornou dopravní dostupnost díky přímému vjezdu z hlavní státní silnice, která navazuje na výpadovku směrem na Kutnou Horu. K dispozici jsou zpevněné plochy, oplocení, studny a veškeré inženýrské sítě, což umožňuje široké spektrum komerčního využití.
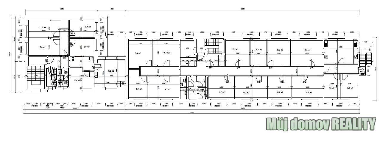
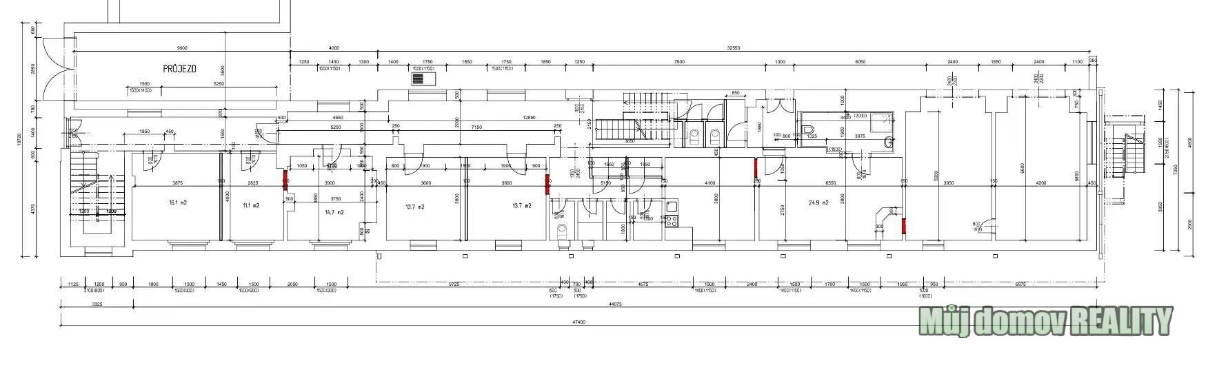
Dvoupodlažní budova je částečně podsklepená. V suterénu se nachází kotelna a skladovací prostory. V 1. nadzemním podlaží jsou zděné konstrukce se zateplením, ve 2. nadzemním podlaží jsou použity montované konstrukce s kovovými sloupy. Jednotlivá podlaží jsou propojena třemi schodišti. Budova nabízí kanceláře, zasedací místnost a díky svému uspořádání může sloužit jak pro administrativní účely, tak po rekolaudaci i jako ubytovací zařízení.
Nabízíme k pronájmu samostatnou dvoupatrovou budovu o celkové užitné ploše 626 m and sup2; v Praze 22 Uhříněves, ulice Přátelství. Objekt je vhodný zejména jako ubytovna pro zaměstnance (nutná kolaudace na ubytovací zařízení), sídlo společnosti, administrativní budova, coworkingové centrum nebo kombinace kancelářských prostor a ubytování. Díky své dispozici poskytuje dostatek prostoru pro provoz firmy i zázemí zaměstnanců.
Budova disponuje celkem 26 pokoji a praktickým dispozičním řešením.
Dispozice objektu:
Přízemí: 5 pokojů, kuchyň, 4 sprchy a 4 toalety
Sklepní prostory: 3 místnosti vhodné jako sklad, technické zázemí nebo provozní prostory
patro: 6 pokojů, kuchyň, 2 toalety se sprchou
Samostatná část budovy: kuchyň, 15 pokojů, 4 toalety a 3 sprchy možnost odděleného provozu
Variabilita dispozice umožňuje rozdělení objektu na více samostatných celků, kombinaci administrativního a ubytovacího využití nebo vytvoření plnohodnotného firemního zázemí.
Nemovitost je ve smíšené konstrukci, v dobrém technickém stavu a připravena k okamžitému užívání. Objekt se pronajímá bez vybavení. Energetická náročnost budovy je třídy G (mimořádně nehospodárná).
K dispozici jsou 3 venkovní parkovací stání.
Dopravní dostupnost je velmi dobrá. Zastávka MHD se nachází přibližně 2 minuty chůze od budovy, s rychlým spojením do centra Prahy i dalších městských částí. V blízkosti je také vlakové spojení.
Lokalita nabízí kompletní občanskou vybavenost. V docházkové vzdálenosti se nachází supermarket Lidl, další obchody, restaurace, kavárny, služby, lékárna i další provozovny. V okolí jsou zdravotnická zařízení, pošta, banky, školy a školky. Pro volný čas je k dispozici sportovní zázemí, fitness centra, cyklostezky a zeleň.
Základní informace:
Užitná plocha: 626 m and sup2;
Měsíční nájemné: 175 280 Kč (cca 280 Kč/m and sup2;)
Zálohy na služby: cca 20 000 Kč měsíčně
Vratná kauce: 175 000 Kč
Provize realitní kanceláři: 175 000 Kč + DPH
K dispozici ihned
Pro více informací nebo sjednání prohlídky mě neváhejte kontaktovat. Ráda vám nemovitost osobně představím. Tento objekt představuje praktické a flexibilní zázemí pro podnikání v Praze.
Uživatel serveru RealityMIX.iprima.cz (dále jen „Server“) dostupného na internetové adrese (URL) https://realitymix.iprima.cz, který provozuje společnost DALTEN media s.r.o., se sídlem Na Harfě 916/9a, Praha 9, 190 00, IČO: 271 35 306 (dále jen „Správce“) jako provozovateli tohoto Serveru uděluje svůj výslovný souhlas v souladu s ustanovením § 5 zákona č. 101/2000 Sb. O ochraně osobních údajů a o změně některých zákonů, v platném znění (dále jen „zákon o ochraně osobních údajů“), se zpracováním uživatelem poskytnutých osobních údajů a dalších dat.
Uživatel poskytuje Správci osobní údaje v rozsahu: jméno, příjmení, e-mailová adresa, telefonický kontakt a další data, a to z důvodu projeveného zájmu o nemovitost, kde prostřednictvím služby Serveru Správce osloví Uživatel inzerenta uvedeného v detailu
nemovitosti - Můj Domov Reality s.r.o. (IČ 08487316) se zájmem o jeho služby.
Uživatel tyto osobní údaje poskytuje dobrovolně a bere na vědomí, že součástí služeb Správce, které Správce Uživateli poskytuje, je vyhledání všech Uživateli vyhovujících (dle parametrů - cena, typ nemovitosti, lokalita atd.) nemovitostí. Správce za tímto účelem provozuje aplikace Hlídací pes a newsletter. Tyto služby je možné z každého zaslaného emailu odhlásit. Souhlas se zpracováním osobních údajů Uživatel poskytuje Správci na dobu neurčitou s tím, že svůj udělený souhlas může Uživatel kdykoliv na drese správce info@realitymix.cz odvolat. Správce garantuje Uživateli i další práva uvedené v ustanovení §11 a §21 zákoba č. 101/200 Sb. Ve znění pozdějších předpisů.
Více informací o zpracování údajů získáte zde (realitymix.cz/zasady-ochrany-osobnich-udaju)