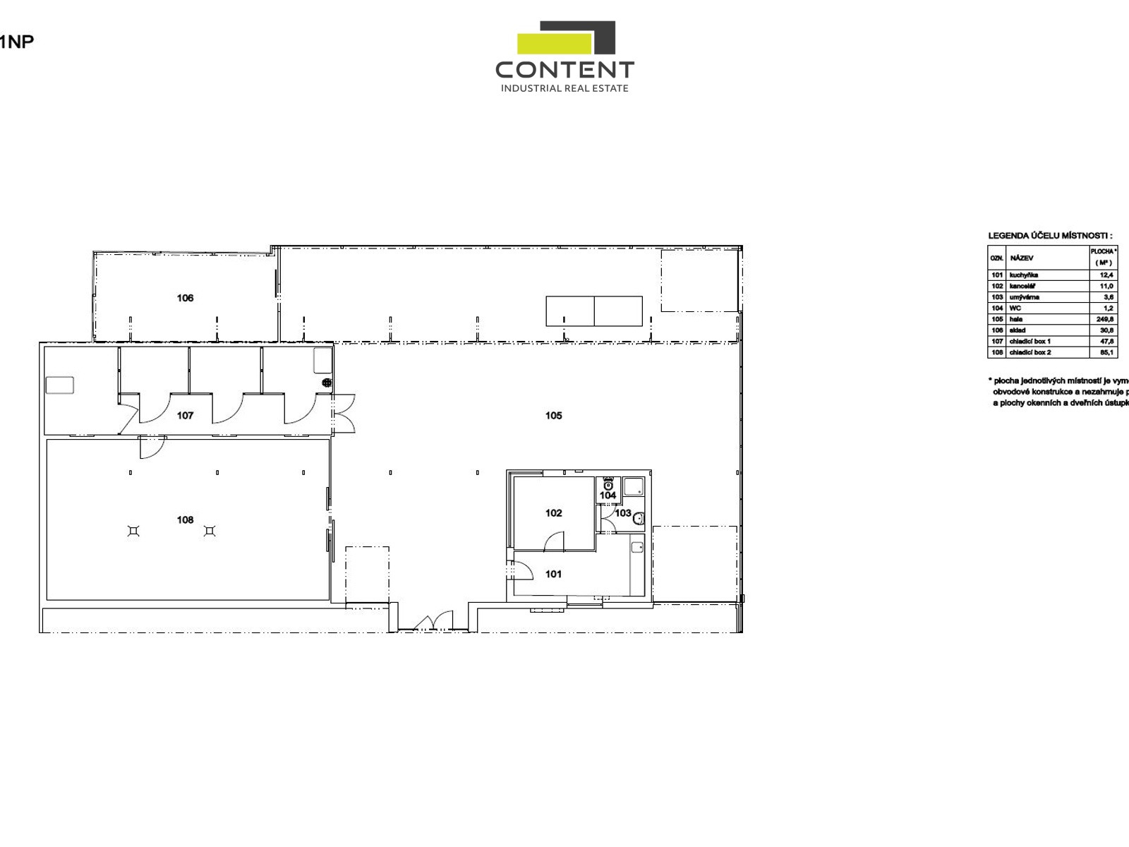
Pronájem skladu s chladícími boxy 450 m², Praha 10
Praha 10 - Hostivař, ulice U Továren. Exkluzivně a bez provize nabízíme k pronájmu samostatnou halu 450 m², vhodnou pro skladování nebo velkoobchod, která se skladá z:
skladová část – 250 m², chladící boxy - 160 m², kancelářské prostory a zázemí – 40 m².
- K dispozici od 1.3.2026,
- budova zateplena, vytápěna plynovým kotlem,
- výška stropu 3 m, betonová podlaha, dlažba, dobré denní světlo,
- 3 x přímý vjezd – největší 2,7 x 2,7 m,
- chladící jednotky schopny chladit nejméně na 4°C,
- kanceláře s kuchyňkou a sociálním zázemím,
- prosklený osobní vstup
- dostatečné manipulační a parkovací plochy,
- bezproblémová dostupnost pro TIR a ostatní dopravu.
Cena za celý objekt 110.000,-kč/měsíc + energie.
Pro více informací nás kontaktujte. V případě zájmu vám rádi zajistíme prohlídku nemovitosti.
Uživatel serveru RealityMIX.iprima.cz (dále jen „Server“) dostupného na internetové adrese (URL) https://realitymix.iprima.cz, který provozuje společnost DALTEN media s.r.o., se sídlem Na Harfě 916/9a, Praha 9, 190 00, IČO: 271 35 306 (dále jen „Správce“) jako provozovateli tohoto Serveru uděluje svůj výslovný souhlas v souladu s ustanovením § 5 zákona č. 101/2000 Sb. O ochraně osobních údajů a o změně některých zákonů, v platném znění (dále jen „zákon o ochraně osobních údajů“), se zpracováním uživatelem poskytnutých osobních údajů a dalších dat.
Uživatel poskytuje Správci osobní údaje v rozsahu: jméno, příjmení, e-mailová adresa, telefonický kontakt a další data, a to z důvodu projeveného zájmu o nemovitost, kde prostřednictvím služby Serveru Správce osloví Uživatel inzerenta uvedeného v detailu
nemovitosti - CONTENT REALITY s.r.o. (IČ 04001613) se zájmem o jeho služby.
Uživatel tyto osobní údaje poskytuje dobrovolně a bere na vědomí, že součástí služeb Správce, které Správce Uživateli poskytuje, je vyhledání všech Uživateli vyhovujících (dle parametrů - cena, typ nemovitosti, lokalita atd.) nemovitostí. Správce za tímto účelem provozuje aplikace Hlídací pes a newsletter. Tyto služby je možné z každého zaslaného emailu odhlásit. Souhlas se zpracováním osobních údajů Uživatel poskytuje Správci na dobu neurčitou s tím, že svůj udělený souhlas může Uživatel kdykoliv na drese správce info@realitymix.cz odvolat. Správce garantuje Uživateli i další práva uvedené v ustanovení §11 a §21 zákoba č. 101/200 Sb. Ve znění pozdějších předpisů.
Více informací o zpracování údajů získáte zde (realitymix.cz/zasady-ochrany-osobnich-udaju)