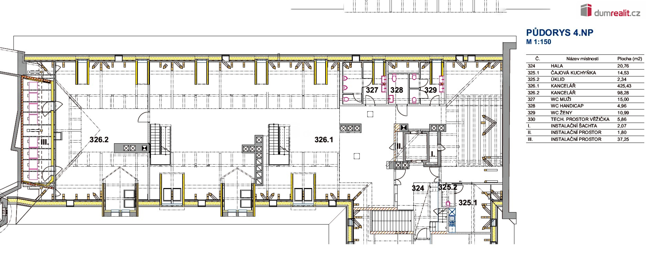
Nabízíme Vám pronájem nově budované moderní reprezentativní kanceláře v prostoru historického prestižním objektu, klášteře sester Voršilek, přímo na ul. Národní, u zastávky tramvaje "Národní" navazující na Novou scénu Národního divadla. Jedná se v tuto chvíli o otevřený prostor, který se nachází ve 4.NP s výtahem. Jedná se o variabilní prostor, kdy dispozice kanceláří lze postavit podle Vašich představ, nebo mít velký open space, rozdělený dělícími stěnami a měnit dle aktuální potřeby. Jedná se o nejsvětlejší kancelářské prostory o celkové výměře 137m², ke kterým je i pro ostatní kanceláře na patře společná kuchyň s jídelnou, toalety, sprcha, technická místnost. Součástí služeb celého objektu je i recepce, s možností přenechání např. dokumentů, pošty atd., která se nachází v přízemí objektu. Náklady na vybudování jdou za pronajímatelem. Orientace kanceláře je primárně na jih do klidného klášterního parku, který není určen pro širokou veřejnost, tudíž klid a ticho zde jsou zaručeny. Prostory budou klimatizované, připojení na internet je samozřejmostí. Dokončení rekonstrukce je do cca 3 měsíců od podepsání rezervace na kanceláře. Ke kanceláři patří i věžička, jejíž výměra není započítána do výměr kanceláře, z této věžičky je i krásný výhled. V objektu je k dispozici možnost pronajmutí reprezentativních ozvučených sálů, na Vaše uzavřené konference, prezentace, jednání či večírky. Sály jsou dva, s kapacitou 100 a 30 osob. K pronájmu je možnost i parkovacího místa v ul.: Voršilská za cenu 3.500,-Kč/měsíc, nebo ve vnitrobloku za 6.000,-Kč+ DPH. V objektu se dále nachází dvě kavárny s občerstvením, velmi kvalitní velká restaurace se zahrádkou a pokud budete chtít mimo objekt, tak naproti je Kavárna Slavie. Zálohové služby za měsíc jsou ve výši 8 200,-Kč/m² za předmětný prostor. Jedná se o poslední volné kanceláře v celém objektu. Ev. číslo: 652162.
Cena:
68 500 Kč / (za měsíc)
Poznámka:
+popl. 60
Číslo zakázky:
REALITYMIX-652776
Podrobné informace
Plocha kanceláří:137 m²
Druh objektu:cihlová
Stav objektu:ve výstavbě (hrubá stavba)
Druh prostor:Kanceláře
Ostatní:Výtah, Stravování
Umístění objektu:centrum obce
Elektřina:Elektro - 400 V
Voda:Voda - dálkový vodovod
Telekomunikace:Telefon
Topení:Ústřední - dálkové
Odpad:Kanalizace
Energetická náročnost budovy:B - Velmi úsporná
Ukazatel energetické náročnosti budovy:92 kWh/m²
Energetický ukazatel podle vyhlášky:č. 78/2013 Sb.
Uživatel serveru RealityMIX.iprima.cz (dále jen „Server“) dostupného na internetové adrese (URL) https://realitymix.iprima.cz, který provozuje společnost DALTEN media s.r.o., se sídlem Na Harfě 916/9a, Praha 9, 190 00, IČO: 271 35 306 (dále jen „Správce“) jako provozovateli tohoto Serveru uděluje svůj výslovný souhlas v souladu s ustanovením § 5 zákona č. 101/2000 Sb. O ochraně osobních údajů a o změně některých zákonů, v platném znění (dále jen „zákon o ochraně osobních údajů“), se zpracováním uživatelem poskytnutých osobních údajů a dalších dat.
Uživatel poskytuje Správci osobní údaje v rozsahu: jméno, příjmení, e-mailová adresa, telefonický kontakt a další data, a to z důvodu projeveného zájmu o nemovitost, kde prostřednictvím služby Serveru Správce osloví Uživatel inzerenta uvedeného v detailu
nemovitosti - Dumrealit.cz (IČ 00537861) se zájmem o jeho služby. Tato společnost je součástí seskupení/sítě/franšízového modelu realitních kanceláří, jejich seznam můžete zobrazit kliknutím na tento odkaz.
Dumrealit.cz (IČ 00537861) , HOME 4 PEOPLE (IČ 29132886) , Reality 11 (IČ 29132886) , REAL ESTATE CZECH REPUBLIC a.s. (IČ 29132886) , Národní Realitní Holding a.s. (IČ 02918897)
Uživatel tyto osobní údaje poskytuje dobrovolně a bere na vědomí, že součástí služeb Správce, které Správce Uživateli poskytuje, je vyhledání všech Uživateli vyhovujících (dle parametrů - cena, typ nemovitosti, lokalita atd.) nemovitostí. Správce za tímto účelem provozuje aplikace Hlídací pes a newsletter. Tyto služby je možné z každého zaslaného emailu odhlásit. Souhlas se zpracováním osobních údajů Uživatel poskytuje Správci na dobu neurčitou s tím, že svůj udělený souhlas může Uživatel kdykoliv na drese správce info@realitymix.cz odvolat. Správce garantuje Uživateli i další práva uvedené v ustanovení §11 a §21 zákoba č. 101/200 Sb. Ve znění pozdějších předpisů.
Více informací o zpracování údajů získáte zde (realitymix.cz/zasady-ochrany-osobnich-udaju)