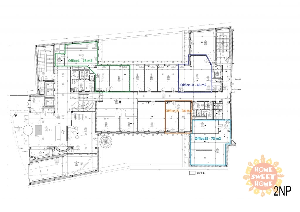
Praha, pronájem moderní kanceláře 78 m2, klimatizace, recepce, ostraha, garáž, Klimentská ulice
Rádi bychom Vám nabídli částečně zařízené kancelářské prostory k pronájmu v Klimentské ulici na Praze 1, o rozloze 78 m2 ve druhém nadzemním podlaží administrativní budovy nedaleko obchodního centra Palladium.
Budova disponuje reprezentativními společnými prostory, recepcí či ostrahou 24/7, přístup na magnetické karty, rychlým internetem s optickým připojením a parkingem.
Prostory jsou klimatizované, společné prostory na patře disponují kuchyňkou, sprchou, toaletami a tichými terasami ve vnitrobloku k vybraným jednotkám. Cena za parking je 6.000,- + DPH a je zde možnost pronájmu 4 parkovacích stání.
Lokalita Praha 1 - Nové Město nabízí plnou občanskou vybavenost, nachází se zde řada obchodů, nákupní centrum Palladium, Kotva, restaurace, pošta, školy, divadla, galerie. V okolí domu je několik zastávek tramvají a autobusů, metro B - Náměstí Republiky pouze 4 minuty chůzí.
Cena:
25 325 Kč / (za měsíc)
Poznámka:
+ 14.186,83 Kč + DPH (140 Kč/ m2) poplatky včetně topení, elektřina se převádí na nájemce, vratná kauce ve výši 2 měsíčních nájmů + DPH
Uživatel serveru RealityMIX.iprima.cz (dále jen „Server“) dostupného na internetové adrese (URL) https://realitymix.iprima.cz, který provozuje společnost DALTEN media s.r.o., se sídlem Na Harfě 916/9a, Praha 9, 190 00, IČO: 271 35 306 (dále jen „Správce“) jako provozovateli tohoto Serveru uděluje svůj výslovný souhlas v souladu s ustanovením § 5 zákona č. 101/2000 Sb. O ochraně osobních údajů a o změně některých zákonů, v platném znění (dále jen „zákon o ochraně osobních údajů“), se zpracováním uživatelem poskytnutých osobních údajů a dalších dat.
Uživatel poskytuje Správci osobní údaje v rozsahu: jméno, příjmení, e-mailová adresa, telefonický kontakt a další data, a to z důvodu projeveného zájmu o nemovitost, kde prostřednictvím služby Serveru Správce osloví Uživatel inzerenta uvedeného v detailu
nemovitosti - Home Sweet Home (IČ 24141496) se zájmem o jeho služby. Tato společnost je součástí seskupení/sítě/franšízového modelu realitních kanceláří, jejich seznam můžete zobrazit kliknutím na tento odkaz.
Home sweet home Plzeň (IČ 63916258) , Home Sweet Home (IČ 24141496)
Uživatel tyto osobní údaje poskytuje dobrovolně a bere na vědomí, že součástí služeb Správce, které Správce Uživateli poskytuje, je vyhledání všech Uživateli vyhovujících (dle parametrů - cena, typ nemovitosti, lokalita atd.) nemovitostí. Správce za tímto účelem provozuje aplikace Hlídací pes a newsletter. Tyto služby je možné z každého zaslaného emailu odhlásit. Souhlas se zpracováním osobních údajů Uživatel poskytuje Správci na dobu neurčitou s tím, že svůj udělený souhlas může Uživatel kdykoliv na drese správce info@realitymix.cz odvolat. Správce garantuje Uživateli i další práva uvedené v ustanovení §11 a §21 zákoba č. 101/200 Sb. Ve znění pozdějších předpisů.
Více informací o zpracování údajů získáte zde (realitymix.cz/zasady-ochrany-osobnich-udaju)