Podnájem kanceláří v administrativní budově Oasis Florenc
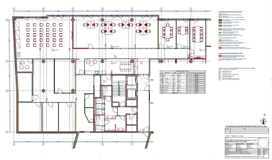
Nabízíme k okamžitému podnájmu kancelářské prostory v prestižní administrativní budově Oasis Florenc, která se nachází na velmi žádané a skvěle dostupné lokalitě na pomezí centra Prahy a Karlína. Pozornost poutá obložení z přírodního kamene a moderní prosklená fasáda, díky nimž má budova moderní a zároveň nadčasově klasický vzhled. Prostory mají celkovou výměru 337 m² hrubé plochy, z toho 311 m² čisté plochy. Budova nabízí vstupy ze dvou ulic, Pobřežní a Sokolovská, recepci a rychlostní výtahy. Kanceláře jsou vybaveny zdvojenými podlahami, klimatizací, otevíratelnými okny a příjemnou světlou výškou. Dispozičně jsou řešeny jako dva open space prostory, čtyři zasedací místnosti a kuchyně. Terasy a toalety jsou sdílené. Stávající kancelářský nábytek je možné odkoupit. Parkování v současné době není k dispozici. Podnájem je možný do 31. 7. 2030. V případě zájmu o menší kancelářské prostory v Karlíně je také možnost sdílení prostor se stávajícím nájemcem.
Uživatel serveru RealityMIX.iprima.cz (dále jen „Server“) dostupného na internetové adrese (URL) https://realitymix.iprima.cz, který provozuje společnost DALTEN media s.r.o., se sídlem Na Harfě 916/9a, Praha 9, 190 00, IČO: 271 35 306 (dále jen „Správce“) jako provozovateli tohoto Serveru uděluje svůj výslovný souhlas v souladu s ustanovením § 5 zákona č. 101/2000 Sb. O ochraně osobních údajů a o změně některých zákonů, v platném znění (dále jen „zákon o ochraně osobních údajů“), se zpracováním uživatelem poskytnutých osobních údajů a dalších dat.
Uživatel poskytuje Správci osobní údaje v rozsahu: jméno, příjmení, e-mailová adresa, telefonický kontakt a další data, a to z důvodu projeveného zájmu o nemovitost, kde prostřednictvím služby Serveru Správce osloví Uživatel inzerenta uvedeného v detailu
nemovitosti - ENGEL & VÖLKERS (IČ 27533328) se zájmem o jeho služby.
Uživatel tyto osobní údaje poskytuje dobrovolně a bere na vědomí, že součástí služeb Správce, které Správce Uživateli poskytuje, je vyhledání všech Uživateli vyhovujících (dle parametrů - cena, typ nemovitosti, lokalita atd.) nemovitostí. Správce za tímto účelem provozuje aplikace Hlídací pes a newsletter. Tyto služby je možné z každého zaslaného emailu odhlásit. Souhlas se zpracováním osobních údajů Uživatel poskytuje Správci na dobu neurčitou s tím, že svůj udělený souhlas může Uživatel kdykoliv na drese správce info@realitymix.cz odvolat. Správce garantuje Uživateli i další práva uvedené v ustanovení §11 a §21 zákoba č. 101/200 Sb. Ve znění pozdějších předpisů.
Více informací o zpracování údajů získáte zde (realitymix.cz/zasady-ochrany-osobnich-udaju)