Nebytový prostor na kanceláře nebo ordinace, celkem 325,03 m2, v objektu AGORA FLORA, u metra Flora
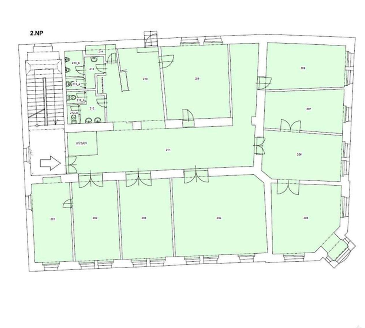
Nabídka na nebytového prostoru k pronájmu v bývalé secesní továrníkově vile, o výměře 325,03 m2. Jedná se o prostorné místnosti s velkou plochou a vysokými stropy se štukovou výzdobou. Dostatek světla v interiérech zajišťuje nárožní poloha vily s jihozápadní orientací, vysokými členěnými obloukovými okny, které doplňují vnitřní prosklené dveře s dekorativními motivy secese. Vila, která je součástí komplexu AGORA FLORA nabízí celkem čtyři nadzemní podlaží, přičemž nabízený nebytový prostor o výměře 325,03 m2 se nachází ve 2.NP. Prostory jsou svým charakterem vhodné pro využití jako kanceláře, případně po úpravě a rekolaudaci i jako ordinace lékařů.
Možnost pronájmu podzemního parkovacího stání.
Komplex má exkluzivní polohu v centru Vinohrad. Stanice metra A – Flora, tramvajové i autobusové zastávky jsou v bezprostřední blízkosti objektu.
V objektu se nachází mimo jiné: prodejna PENNY, fitness centrum, kancelářské prostory, ordinace psychoterapeuta, studio Hot jógy, kadeřnictví, manikúra, ordinace dětských lékařů, ordinace zubních lékařů, klinika stomatologie a zubní hygieny, Indická restaurace (od III/2026), asijská restaurace, kavárna, půjčovna sportovních potřeb (lyže, kola), servis jízdních kol
Nájemné: cena k jednání, od 350,- Kč/m2/měsíc (bez DPH), v závislosti na délce nájemního vztahu a požadovaných stavebních úpravách.
K pronájmu: od 1.4.2026
Zálohy na služby (aktuální): 145,- Kč/m2/měsíc vč. DPH (vč. záloh na vlastní spotřebu energií),
zúčtovatelná záloha s ročním vyúčtováním.
Doba nájmu: preferujeme nájemní smlouvu na dobu určitou, min. 3 let.
Jistota ve výši 2měsíčních nájmů vč. DPH a 2 záloh na poskytované služby bude uhrazena při podpisu smlouvy, resp. nejpozději v den počátku nájmu.
Neplatíte provizi RK.
Uživatel serveru RealityMIX.iprima.cz (dále jen „Server“) dostupného na internetové adrese (URL) https://realitymix.iprima.cz, který provozuje společnost DALTEN media s.r.o., se sídlem Na Harfě 916/9a, Praha 9, 190 00, IČO: 271 35 306 (dále jen „Správce“) jako provozovateli tohoto Serveru uděluje svůj výslovný souhlas v souladu s ustanovením § 5 zákona č. 101/2000 Sb. O ochraně osobních údajů a o změně některých zákonů, v platném znění (dále jen „zákon o ochraně osobních údajů“), se zpracováním uživatelem poskytnutých osobních údajů a dalších dat.
Uživatel poskytuje Správci osobní údaje v rozsahu: jméno, příjmení, e-mailová adresa, telefonický kontakt a další data, a to z důvodu projeveného zájmu o nemovitost, kde prostřednictvím služby Serveru Správce osloví Uživatel inzerenta uvedeného v detailu
nemovitosti - Reality Zemanová (IČ 44371985) se zájmem o jeho služby.
Uživatel tyto osobní údaje poskytuje dobrovolně a bere na vědomí, že součástí služeb Správce, které Správce Uživateli poskytuje, je vyhledání všech Uživateli vyhovujících (dle parametrů - cena, typ nemovitosti, lokalita atd.) nemovitostí. Správce za tímto účelem provozuje aplikace Hlídací pes a newsletter. Tyto služby je možné z každého zaslaného emailu odhlásit. Souhlas se zpracováním osobních údajů Uživatel poskytuje Správci na dobu neurčitou s tím, že svůj udělený souhlas může Uživatel kdykoliv na drese správce info@realitymix.cz odvolat. Správce garantuje Uživateli i další práva uvedené v ustanovení §11 a §21 zákoba č. 101/200 Sb. Ve znění pozdějších předpisů.
Více informací o zpracování údajů získáte zde (realitymix.cz/zasady-ochrany-osobnich-udaju)