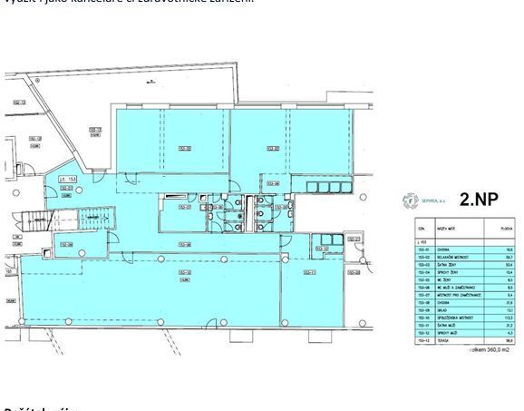
Nebytové prostory s pronajímatelnou plochou 360 m2 ve 2. NP s výtahem a se vstupem z pasáže, která spojuje ulici Hradeckou a Chrudimskou. Aktuálně jsou prostory provozované jako studio HOT YOGY. Ideální pro zájemce hledající podobné využití (masážní studio, YOGA studio, pilates, apod.). Lze i po
dohodě se stávajícím nájemcem převzít zařízení a vybavení studia, není to však podmínkou. Prostory je možné po úpravě využít i jako kanceláře či zdravotnické zařízení.
Počátek nájmu - prostory jsou k dispozici po domluvě se stávajícím nájemníkem.
Nájemné - cena k jednání, od 350,- Kč/m2/měsíc (bez DPH).
Zálohy na služby - určí se dle zvoleného provozu. Na základě aktuálních cen energií a využití prostoru je stanovena výše zúčtovatelných záloh na služby a vlastní spotřebu na 145,- Kč/m2/měsíc vč. DPH, s ročním vyúčtováním.
Doba nájmu - ideálně na dobu určitou, min. 3 let.
Jistota - ve výši 2měsíčních nájmů vč. DPH a 2 záloh na služby bude uhrazena při podpisu smlouvy, resp. nejpozději v den počátku nájmu.
Technická specifikace nebytového prostoru:
- elektrická energie, přívod teplé a studené vody, centrální vytápění
- vlastní sociální zázemí
- vzduchotechnika
- vstup do společných prostor na čipy
- světlá výška 2,9 m
Vybavení budovy:
- ostraha 24/7
- EPS, CCTV
- vstup na čipy
- podzemní garáže
Pronajímatel je připraven:
- konzultovat technické požadavky nájemce na úpravu prostor
- realizovat stavební úpravy prostor
- zajistit projednávání požadovaných změn s dotčenými orgány
Uživatel serveru RealityMIX.iprima.cz (dále jen „Server“) dostupného na internetové adrese (URL) https://realitymix.iprima.cz, který provozuje společnost DALTEN media s.r.o., se sídlem Na Harfě 916/9a, Praha 9, 190 00, IČO: 271 35 306 (dále jen „Správce“) jako provozovateli tohoto Serveru uděluje svůj výslovný souhlas v souladu s ustanovením § 5 zákona č. 101/2000 Sb. O ochraně osobních údajů a o změně některých zákonů, v platném znění (dále jen „zákon o ochraně osobních údajů“), se zpracováním uživatelem poskytnutých osobních údajů a dalších dat.
Uživatel poskytuje Správci osobní údaje v rozsahu: jméno, příjmení, e-mailová adresa, telefonický kontakt a další data, a to z důvodu projeveného zájmu o nemovitost, kde prostřednictvím služby Serveru Správce osloví Uživatel inzerenta uvedeného v detailu
nemovitosti - Reality Zemanová (IČ 44371985) se zájmem o jeho služby.
Uživatel tyto osobní údaje poskytuje dobrovolně a bere na vědomí, že součástí služeb Správce, které Správce Uživateli poskytuje, je vyhledání všech Uživateli vyhovujících (dle parametrů - cena, typ nemovitosti, lokalita atd.) nemovitostí. Správce za tímto účelem provozuje aplikace Hlídací pes a newsletter. Tyto služby je možné z každého zaslaného emailu odhlásit. Souhlas se zpracováním osobních údajů Uživatel poskytuje Správci na dobu neurčitou s tím, že svůj udělený souhlas může Uživatel kdykoliv na drese správce info@realitymix.cz odvolat. Správce garantuje Uživateli i další práva uvedené v ustanovení §11 a §21 zákoba č. 101/200 Sb. Ve znění pozdějších předpisů.
Více informací o zpracování údajů získáte zde (realitymix.cz/zasady-ochrany-osobnich-udaju)