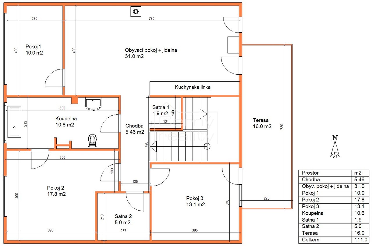
Pronájem luxusního bytu 4+kk (170 m2), z toho - byt (98 m2), terasa (16 m2), sklep 17 m2, chodba (12 m2), půda (30 m2). Dále je k dispozici a sdílená zahrada s pergolou a krbem (180 m2). Byt je umístěn v rodinném domě, do bytu se vchází společnou domovní chodbou, byt je oddělen vstupními dveřmi, za nimi se na chodbě nachází vestavěný botník a věšák, chodba o ploše 12 m2 se vstupem na zahradu, na chdobě lze umístit např. kola kočárek atp., z chodby je vstup i do klenbového sklepu, o ploše 17 m2.Samotný byt se nachází v 1.patře a má následující dispozici:schodiště se střešním oknem, nočními led světly a dalším designovým osvětlením, schodišťová podesta 3m2.Vstupní chodba s podlahovým topením o ploše 5,5 m2, zde je umístěno výklopné schodiště na půdu, šatna1 1,9 m2, se světlíkem do schodišťového prostoru, šatna2 5,0 m2, obývací pokoj 31m2, s krbovými kamny, jídelnou, se vstupem na terasu, kuchyňská linka s vestavěnými spotřebiči zn. Siemens a Liebherr, pokoj1 10m2, otočen do ulice, pokoj2 17,8m2, se vstupem do koupelny, pokoj3 13,1m2, se vstupem na terasu, pokoj3 je otočen na východní stranu, tzn. do zahrady, prostrorná koupelna s podlahovým topením 10,6 m2. Terasa je otočena na východní stranu, a má plochu 16m2, tuto terasu můžete v klidu užívat k nerušené relaxaci od jara do podzimu.V bytě jsou luxusní dřevěné dubové podlahy, designové dveře, kuchyňská linka a nábytek na míru.V každém pokoji je klimatizace/topení, tepelné čerpadlo vzduch-vzduch, zn. Mitsubishi.Byt má samostatný elektroměr a vodoměr.Centrum města 1 km, veškerá občanská vybavenost je v docházkové vzdálenosti. tj. škola, školka, Billa, Penny, čerpací stanice atp. Jedná se o Luxusní-nadstandartní bydlení kousek od centra města. S rychlým napojením na rychlostní silnici R37, 1 km od domu je sjezd na R37 (u Parama). Pro více informací a prohlídku nás neváhejte kontaktovat. Byt je k dispozici od 1.3.2026. ID 86226.
Cena:
33 500 Kč / (za měsíc)
Poznámka:
+ energie a služby (6.500,-Kč)
Datum k nastěhování:
01.03.2026
Dispozice/podlahová plocha:
4+kk/350 m²
Číslo zakázky:
REALITYMIX-676
Podrobné informace
Dispozice bytu:4+kk
Číslo podlaží v domě:2
Počet podlaží objektu:3
Celková podlahová plocha:350 m²
Druh objektu:cihlová
Stav objektu:velmi dobrý
Vlastnictví:osobní
Sklep:17 m²
Terasa:16 m²
Vybaveno:ano
Umístění objektu:centrum obce
Doprava:vlak, dálnice, MHD, autobus
Občanská vybavenost:Škola, Školka, Zdravotnická zařízení, Pošta, Supermarket, Kompletní síť obchodů a služeb
Elektřina:Elektro - 230 V, Elektro - 400 V
Voda:Voda - dálkový vodovod
Topení:Lokální - tuhá paliva, Lokální - elektrické, Ústřední - tuhá paliva, Ústřední - elektrické
Uživatel serveru RealityMIX.iprima.cz (dále jen „Server“) dostupného na internetové adrese (URL) https://realitymix.iprima.cz, který provozuje společnost DALTEN media s.r.o., se sídlem Na Harfě 916/9a, Praha 9, 190 00, IČO: 271 35 306 (dále jen „Správce“) jako provozovateli tohoto Serveru uděluje svůj výslovný souhlas v souladu s ustanovením § 5 zákona č. 101/2000 Sb. O ochraně osobních údajů a o změně některých zákonů, v platném znění (dále jen „zákon o ochraně osobních údajů“), se zpracováním uživatelem poskytnutých osobních údajů a dalších dat.
Uživatel poskytuje Správci osobní údaje v rozsahu: jméno, příjmení, e-mailová adresa, telefonický kontakt a další data, a to z důvodu projeveného zájmu o nemovitost, kde prostřednictvím služby Serveru Správce osloví Uživatel inzerenta uvedeného v detailu
nemovitosti - Reality Černý s.r.o. (IČ 62064304 ) se zájmem o jeho služby.
Uživatel tyto osobní údaje poskytuje dobrovolně a bere na vědomí, že součástí služeb Správce, které Správce Uživateli poskytuje, je vyhledání všech Uživateli vyhovujících (dle parametrů - cena, typ nemovitosti, lokalita atd.) nemovitostí. Správce za tímto účelem provozuje aplikace Hlídací pes a newsletter. Tyto služby je možné z každého zaslaného emailu odhlásit. Souhlas se zpracováním osobních údajů Uživatel poskytuje Správci na dobu neurčitou s tím, že svůj udělený souhlas může Uživatel kdykoliv na drese správce info@realitymix.cz odvolat. Správce garantuje Uživateli i další práva uvedené v ustanovení §11 a §21 zákoba č. 101/200 Sb. Ve znění pozdějších předpisů.
Více informací o zpracování údajů získáte zde (realitymix.cz/zasady-ochrany-osobnich-udaju)