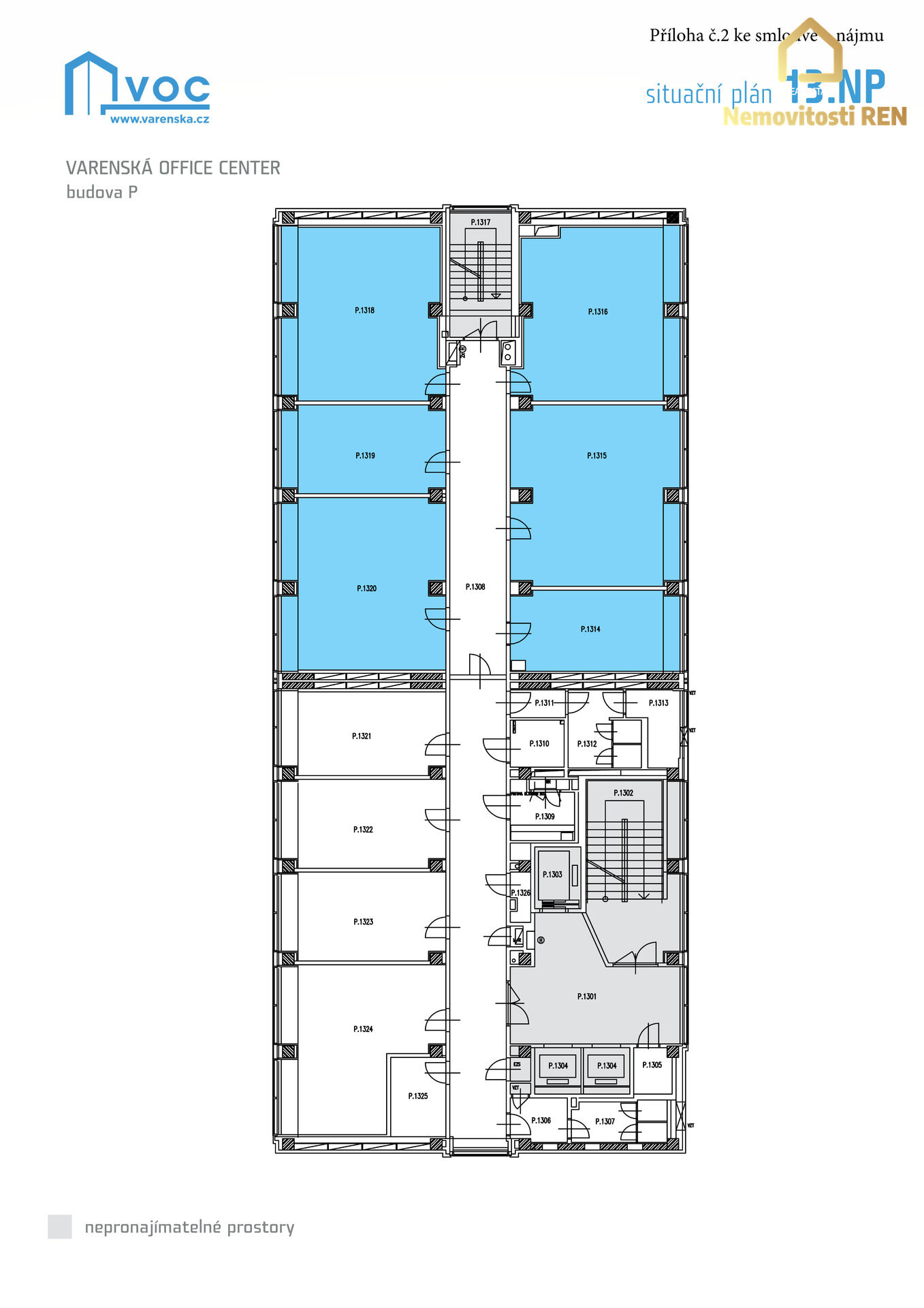
Moderní a atraktivní prostředí nabízí kancelářské prostory o celkové ploše 275 m², které se nacházejí ve 13. patře administrativní budovy.
Jedná se o oddělený kancelářský celek, který tvoří 4 kanceláře o velikosti cca 40 m² a 2 kanceláře o velikosti cca 20 m², doplněné o společné prostory – chodbu a sociální zázemí.
Preferován je pronájem celého prostoru jako jednoho celku.
Přístup do objektu je zajištěn schodištěm i výtahy.
Bezpečnost budovy zaručuje non-stop bezpečnostní služba, kontrolovaný vstup přes recepci s nepřetržitým provozem a elektronické zabezpečení celého objektu.
Kanceláře jsou klimatizované, světlé a nabízejí krásný výhled na Ostravu. Jsou vybaveny hliníkovými žaluziemi a rozvody PC sítí a internetu. V jedné z místností je umístěna kuchyňská linka.
V okolí je veškerá občanská vybavenost, včetně nákupního centra Futurum, restaurací i služeb. Výborná je rovněž dopravní dostupnost – v blízkosti se nachází zastávky MHD (tramvaj, autobus, trolejbus) i přímé napojení na hlavní silniční tahy a dálnici.
Cena nájmu: 265,83 Kč / m² / měsíc/ bez DPH
Služby a energie: 180 Kč / m² / měsíc / bez DPH
Pokud Vás tato nabídka zaujala, neváhejte mě kontaktovat.
Těším se na Vás na společné prohlídce!
Cena:
73 195 Kč / (za měsíc)
Poznámka:
+ služby a energie 49 562,- Kč
Datum k nastěhování:
24.11.2025
Číslo zakázky:
REALITYMIX-N00243
Podrobné informace
Plocha kanceláří:275 m²
Druh objektu:skeletová
Stav objektu:velmi dobrý
Druh prostor:Kanceláře
Umístění objektu:centrum obce
Doprava:vlak, dálnice, silnice, MHD, autobus
Komunikace:asfaltová
Elektřina:Elektro - 380 V
Voda:Voda - rozvod studené a teplé vody
Telekomunikace:Internet
Odpad:Kanalizace
Ostatní rozvody:Kabelové rozvody
Energetická náročnost budovy:C - Úsporná
Energetický ukazatel podle vyhlášky:č. 78/2013 Sb.
Uživatel serveru RealityMIX.iprima.cz (dále jen „Server“) dostupného na internetové adrese (URL) https://realitymix.iprima.cz, který provozuje společnost DALTEN media s.r.o., se sídlem Na Harfě 916/9a, Praha 9, 190 00, IČO: 271 35 306 (dále jen „Správce“) jako provozovateli tohoto Serveru uděluje svůj výslovný souhlas v souladu s ustanovením § 5 zákona č. 101/2000 Sb. O ochraně osobních údajů a o změně některých zákonů, v platném znění (dále jen „zákon o ochraně osobních údajů“), se zpracováním uživatelem poskytnutých osobních údajů a dalších dat.
Uživatel poskytuje Správci osobní údaje v rozsahu: jméno, příjmení, e-mailová adresa, telefonický kontakt a další data, a to z důvodu projeveného zájmu o nemovitost, kde prostřednictvím služby Serveru Správce osloví Uživatel inzerenta uvedeného v detailu
nemovitosti - Nemovitosti REN (IČ 08803617) se zájmem o jeho služby.
Uživatel tyto osobní údaje poskytuje dobrovolně a bere na vědomí, že součástí služeb Správce, které Správce Uživateli poskytuje, je vyhledání všech Uživateli vyhovujících (dle parametrů - cena, typ nemovitosti, lokalita atd.) nemovitostí. Správce za tímto účelem provozuje aplikace Hlídací pes a newsletter. Tyto služby je možné z každého zaslaného emailu odhlásit. Souhlas se zpracováním osobních údajů Uživatel poskytuje Správci na dobu neurčitou s tím, že svůj udělený souhlas může Uživatel kdykoliv na drese správce info@realitymix.cz odvolat. Správce garantuje Uživateli i další práva uvedené v ustanovení §11 a §21 zákoba č. 101/200 Sb. Ve znění pozdějších předpisů.
Více informací o zpracování údajů získáte zde (realitymix.cz/zasady-ochrany-osobnich-udaju)