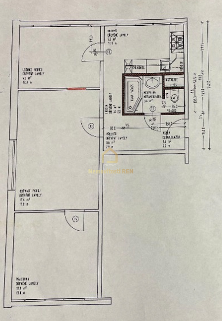
Nabízíme k pronájmu byt o dispozici 3+1 v Ostravě na ulici Petra Křičky, který se nachází ve 4. nadzemním podlaží čtyřpatrového domu. Celková plocha bytu činí 59 m2.
Byt aktuálně prochází kompletní rekonstrukcí a bude připraven pro nové nájemníky od poloviny dubna 2026. Koupelna a toaleta jsou řešeny v moderním šedém dekoru, součástí je vana, umyvadlo, zrcadlová skříňka a samostatné WC vybavené bidetovou sprchou a umývatkem.
Kuchyně je samostatná a navržena v dekoru dub kašmír v kombinaci s pracovní a zádovou deskou v dekoru dubu. Kuchyňská linka je vybavena horkovzdušnou troubou, plynovou varnou deskou a odsavačem par, přičemž je zde připraven prostor pro myčku i volně stojící lednici. Podlahy v bytě tvoří kombinace dlažby a plovoucí podlahy, interiérové dveře budou v bílém provedení. Je zde přiveden optický kabel.
Dispozice bytu nabízí průchozí obývací pokoj, ze kterého je vstup do dvou samostatných místností – pokoje a ložnice. Byt tak poskytuje praktické a funkční uspořádání vhodné jak pro rodinu, tak i pro pár hledající komfortní bydlení.
Lokalita patří mezi velmi oblíbené díky výborné dostupnosti do centra Ostravy a kompletní občanské vybavenosti. V docházkové vzdálenosti se nachází zastávky MHD, obchody, školy, školky, lékaři i další služby. Okolí zároveň nabízí dostatek zeleně, parků a možností pro volnočasové aktivity, což zajišťuje příjemné a pohodlné bydlení s veškerým zázemím na dosah.
Náklady na bydlení:
nájem 14 900,- Kč
služby 2 948,- Kč pro 2 osoby
kauce 36 000,- Kč,
provize RK ve výši 18 000,- Kč
energie s předpisem na nájemce
Pokud Vás tato nabídka zaujala, neváhejte mě kontaktovat. Těším se na Vás na společné prohlídce.
Upozornění: Veškeré zveřejněné údaje obsažené v tomto inzerátu mají pouze informativní charakter a nepředstavují nabídku ve smyslu § 1731 nebo § 1732 občanského zákoníku ani veřejný příslib podle § 1733 občanského zákoníku.
Cena:
14 900 Kč / (za měsíc)
Poznámka:
+ služby 2 948,- Kč pro 2 osoby, kauce 36 000,- Kč, provize RK ve výši 18 000,- Kč, energie s předpisem na nájemce
Uživatel serveru RealityMIX.iprima.cz (dále jen „Server“) dostupného na internetové adrese (URL) https://realitymix.iprima.cz, který provozuje společnost DALTEN media s.r.o., se sídlem Na Harfě 916/9a, Praha 9, 190 00, IČO: 271 35 306 (dále jen „Správce“) jako provozovateli tohoto Serveru uděluje svůj výslovný souhlas v souladu s ustanovením § 5 zákona č. 101/2000 Sb. O ochraně osobních údajů a o změně některých zákonů, v platném znění (dále jen „zákon o ochraně osobních údajů“), se zpracováním uživatelem poskytnutých osobních údajů a dalších dat.
Uživatel poskytuje Správci osobní údaje v rozsahu: jméno, příjmení, e-mailová adresa, telefonický kontakt a další data, a to z důvodu projeveného zájmu o nemovitost, kde prostřednictvím služby Serveru Správce osloví Uživatel inzerenta uvedeného v detailu
nemovitosti - Nemovitosti REN (IČ 08803617) se zájmem o jeho služby.
Uživatel tyto osobní údaje poskytuje dobrovolně a bere na vědomí, že součástí služeb Správce, které Správce Uživateli poskytuje, je vyhledání všech Uživateli vyhovujících (dle parametrů - cena, typ nemovitosti, lokalita atd.) nemovitostí. Správce za tímto účelem provozuje aplikace Hlídací pes a newsletter. Tyto služby je možné z každého zaslaného emailu odhlásit. Souhlas se zpracováním osobních údajů Uživatel poskytuje Správci na dobu neurčitou s tím, že svůj udělený souhlas může Uživatel kdykoliv na drese správce info@realitymix.cz odvolat. Správce garantuje Uživateli i další práva uvedené v ustanovení §11 a §21 zákoba č. 101/200 Sb. Ve znění pozdějších předpisů.
Více informací o zpracování údajů získáte zde (realitymix.cz/zasady-ochrany-osobnich-udaju)