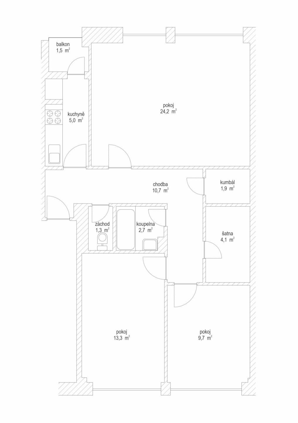
Nabízíme k pronájmu byt s dispozicí 3+1 o ploše 73 m2 + balkón 1,5 m2 v Lounech, ul. Pražská. Byt se nachází ve 2.patře cihlového domu bez výtahu.
Byt je ve výborném stavu, po nové kompletní rekonstrukci a nabízí se zařízený pouze s kuchyňskou linkou se spotřebiči vč. myčky a lednice s mrazákem.
Byt disponuje vstupní chodbou, kuchyní se vstupem na balkón, obývacím pokojem, pokojem, ložnicí, komorou s pračkou, šatnou, koupelnou s vanou, WC samostatné. K bytu náleží sklepní kóje.
V okolí je veškerá občanská vybavenost a dobrá dopravní dostupnost. K nastěhování ihned.
Cena:
17 000 Kč / (za měsíc)
Poznámka:
+ poplatky a služby 4.700,-Kč (pro 4 os.)+ele.energie, kauce 34.000,-Kč, provize RK
Uživatel serveru RealityMIX.iprima.cz (dále jen „Server“) dostupného na internetové adrese (URL) https://realitymix.iprima.cz, který provozuje společnost DALTEN media s.r.o., se sídlem Na Harfě 916/9a, Praha 9, 190 00, IČO: 271 35 306 (dále jen „Správce“) jako provozovateli tohoto Serveru uděluje svůj výslovný souhlas v souladu s ustanovením § 5 zákona č. 101/2000 Sb. O ochraně osobních údajů a o změně některých zákonů, v platném znění (dále jen „zákon o ochraně osobních údajů“), se zpracováním uživatelem poskytnutých osobních údajů a dalších dat.
Uživatel poskytuje Správci osobní údaje v rozsahu: jméno, příjmení, e-mailová adresa, telefonický kontakt a další data, a to z důvodu projeveného zájmu o nemovitost, kde prostřednictvím služby Serveru Správce osloví Uživatel inzerenta uvedeného v detailu
nemovitosti - Altoja Living, s.r.o. (IČ 23240903) se zájmem o jeho služby.
Uživatel tyto osobní údaje poskytuje dobrovolně a bere na vědomí, že součástí služeb Správce, které Správce Uživateli poskytuje, je vyhledání všech Uživateli vyhovujících (dle parametrů - cena, typ nemovitosti, lokalita atd.) nemovitostí. Správce za tímto účelem provozuje aplikace Hlídací pes a newsletter. Tyto služby je možné z každého zaslaného emailu odhlásit. Souhlas se zpracováním osobních údajů Uživatel poskytuje Správci na dobu neurčitou s tím, že svůj udělený souhlas může Uživatel kdykoliv na drese správce info@realitymix.cz odvolat. Správce garantuje Uživateli i další práva uvedené v ustanovení §11 a §21 zákoba č. 101/200 Sb. Ve znění pozdějších předpisů.
Více informací o zpracování údajů získáte zde (realitymix.cz/zasady-ochrany-osobnich-udaju)