Pronájem skladu 447m2 ve 2.patře s výtahem – Jirny, Tovární 26 Praha východ
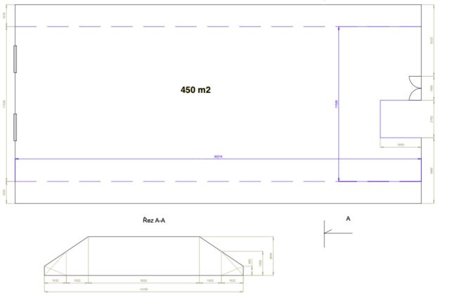
Nabízíme k pronájmu sklad o podlahové ploše 447 m² ve 2.patře s výtahem o nosnosti 1000Kg v komerčním areálu na adrese Tovární 26, Praha východ Jirny. Skladový prostor je ve druhém patře celkem o rozloze 447 m². Prostor je přístupný nákladním výtahem s nosností 1 000 kg a schodištěm, příjezd nákladních vozidel k rampě která disponuje dostatečným manipulačním prostorem pro vozidla do 5 t. Sklad je vybaven topením pro temperování proti zamrznutí a v přízemí jsou k dispozici společné toalety. Průkaz energetické náročnosti zatím nebyl vydán, proto je administrativně uvedena jako třída G – úsporná, což neodráží skutečnou spotřebu energie.Výborná dopravní dostupnost – snadné napojení na dálnici D11 a Pražský okruh, dobrá dostupnost do centra Prahy i do průmyslových zón v okolí, zastávka MHD přímo před budovou (směr Černý Most, Brandýs nad Labem, Úvaly a další směry).
Uživatel serveru RealityMIX.iprima.cz (dále jen „Server“) dostupného na internetové adrese (URL) https://realitymix.iprima.cz, který provozuje společnost DALTEN media s.r.o., se sídlem Na Harfě 916/9a, Praha 9, 190 00, IČO: 271 35 306 (dále jen „Správce“) jako provozovateli tohoto Serveru uděluje svůj výslovný souhlas v souladu s ustanovením § 5 zákona č. 101/2000 Sb. O ochraně osobních údajů a o změně některých zákonů, v platném znění (dále jen „zákon o ochraně osobních údajů“), se zpracováním uživatelem poskytnutých osobních údajů a dalších dat.
Uživatel poskytuje Správci osobní údaje v rozsahu: jméno, příjmení, e-mailová adresa, telefonický kontakt a další data, a to z důvodu projeveného zájmu o nemovitost, kde prostřednictvím služby Serveru Správce osloví Uživatel inzerenta uvedeného v detailu
nemovitosti - Reality PROSTOR s.r.o. (IČ 48951366) se zájmem o jeho služby.
Uživatel tyto osobní údaje poskytuje dobrovolně a bere na vědomí, že součástí služeb Správce, které Správce Uživateli poskytuje, je vyhledání všech Uživateli vyhovujících (dle parametrů - cena, typ nemovitosti, lokalita atd.) nemovitostí. Správce za tímto účelem provozuje aplikace Hlídací pes a newsletter. Tyto služby je možné z každého zaslaného emailu odhlásit. Souhlas se zpracováním osobních údajů Uživatel poskytuje Správci na dobu neurčitou s tím, že svůj udělený souhlas může Uživatel kdykoliv na drese správce info@realitymix.cz odvolat. Správce garantuje Uživateli i další práva uvedené v ustanovení §11 a §21 zákoba č. 101/200 Sb. Ve znění pozdějších předpisů.
Více informací o zpracování údajů získáte zde (realitymix.cz/zasady-ochrany-osobnich-udaju)