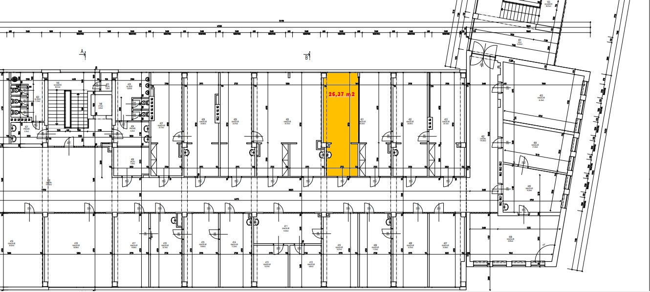
Obch. galerie Globus, Jihlava, pronájem obchodního prostoru 25,37 m2
Ve 4. patře víceúčelové budovy e-Fi Galerie v centru Jihlavy nabízíme k pronájmu obchodní prostor/kancelář. Orientace oken jsou na západní stranu, zajištěn úklid objektu, parkování, výtah. Nabízíme pronájem kanceláře/obchodního prostoru ve čtvrtém patře rekonstruované budovy e-Fi Galerie na adrese Žižkova 13 v Jihlavě.
Nabízená kancelář je o výměře 25,37 m2. V rámci rekonstrukce a opravy budovy zde vznikl nový osobní výtah, byla provedena výměna oken, zateplení pláště budovy, nové výlohy, sociální zařízení. K dispozici je společná kuchyňka a sprcha.
Cena pronájmu je 9.253,- Kč měsíčně vč.energií a služeb.Uvedená cena je bez internetu (přípojka v kanceláři zřízena).
Vratná kauce 1x měsíční nájem.
Neplatíte provizi RK!!!
Nájemci nabízíme možnost umístění reklamy na objektu a zdarma parkování pro osobní vůz ve dvorní části objektu.
V budově jsou k pronájmu volné i další kancelářské, nebo obchodní prostory.
Bližší informace u makléře zakázky.
Průkaz energetické náročnosti budovy: C.
Uživatel serveru RealityMIX.iprima.cz (dále jen „Server“) dostupného na internetové adrese (URL) https://realitymix.iprima.cz, který provozuje společnost DALTEN media s.r.o., se sídlem Na Harfě 916/9a, Praha 9, 190 00, IČO: 271 35 306 (dále jen „Správce“) jako provozovateli tohoto Serveru uděluje svůj výslovný souhlas v souladu s ustanovením § 5 zákona č. 101/2000 Sb. O ochraně osobních údajů a o změně některých zákonů, v platném znění (dále jen „zákon o ochraně osobních údajů“), se zpracováním uživatelem poskytnutých osobních údajů a dalších dat.
Uživatel poskytuje Správci osobní údaje v rozsahu: jméno, příjmení, e-mailová adresa, telefonický kontakt a další data, a to z důvodu projeveného zájmu o nemovitost, kde prostřednictvím služby Serveru Správce osloví Uživatel inzerenta uvedeného v detailu
nemovitosti - e-Finance, a.s. (IČ 26272504) se zájmem o jeho služby.
Uživatel tyto osobní údaje poskytuje dobrovolně a bere na vědomí, že součástí služeb Správce, které Správce Uživateli poskytuje, je vyhledání všech Uživateli vyhovujících (dle parametrů - cena, typ nemovitosti, lokalita atd.) nemovitostí. Správce za tímto účelem provozuje aplikace Hlídací pes a newsletter. Tyto služby je možné z každého zaslaného emailu odhlásit. Souhlas se zpracováním osobních údajů Uživatel poskytuje Správci na dobu neurčitou s tím, že svůj udělený souhlas může Uživatel kdykoliv na drese správce info@realitymix.cz odvolat. Správce garantuje Uživateli i další práva uvedené v ustanovení §11 a §21 zákoba č. 101/200 Sb. Ve znění pozdějších předpisů.
Více informací o zpracování údajů získáte zde (realitymix.cz/zasady-ochrany-osobnich-udaju)