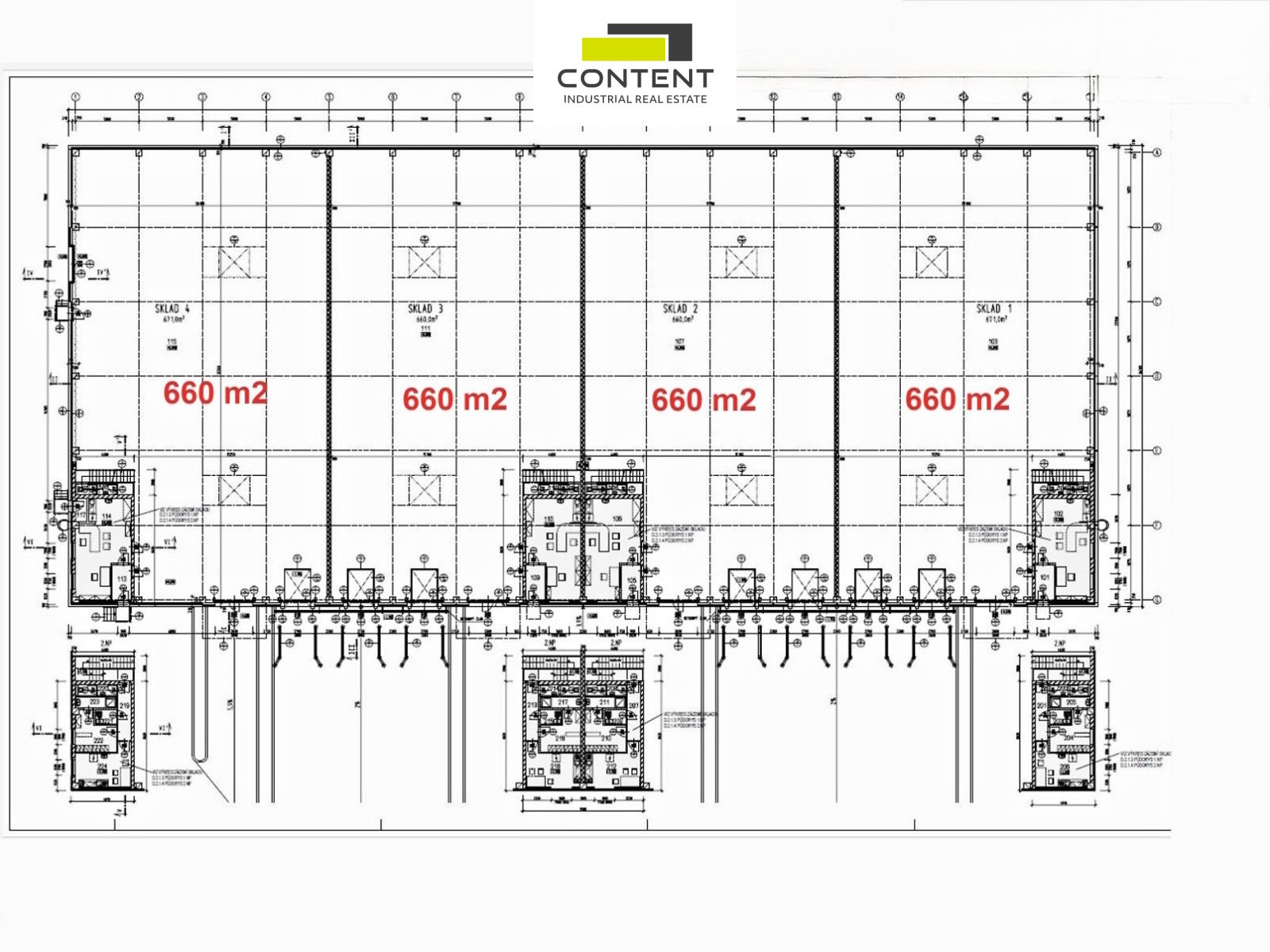
Pronájem skladu, výrobních prostor 2662 m² Jičín.
V exkluzivním zastoupení majitele a bez provize nabízíme novostavbu skladu nebo výrobních prostor o výměře až 2662 m², umístěných v nově vznikajícím průmyslovo-retailovém areálu Ptáček: topení-voda-plyn a Koupelny Ptáček. Areál je přímo viditelný ze silnice I/35 s dobrým napojením na dálnice D10, D11.
- k dispozici dohodou do 10 měsíců,
- jednotky od 660 - 2662 m²,
- strategická poloha s vynikající dostupností v blízkosti důležitých dopravních tahů,
- prostory ve stavu Shell & Core,
- možnost vlastní konfigurace sociálního zázemí a kanceláří,
- světlá výška 8,5 m,
- nosnost podlahy minimálně 5 t/m²,
- hydraulické rampy a přímé vjezdy,
- vytápěné a zateplené prostory, elektřina,
- dostatečné parkovací a manipulační plochy v rámci areálu,
- další úpravy možné dle přání a potřeb konkrétního klienta.
Cena nájmu za skladové plochy je EUR 7/m²/měsíc, kanceláře a sociální zázemí EUR 10/m²/měsíc + služby.
Fotografie jsou pouze ilustrativní. Pro více informací kontaktujte makléře, rádi zodpovíme Vaše dotazy.
Uživatel serveru RealityMIX.iprima.cz (dále jen „Server“) dostupného na internetové adrese (URL) https://realitymix.iprima.cz, který provozuje společnost DALTEN media s.r.o., se sídlem Na Harfě 916/9a, Praha 9, 190 00, IČO: 271 35 306 (dále jen „Správce“) jako provozovateli tohoto Serveru uděluje svůj výslovný souhlas v souladu s ustanovením § 5 zákona č. 101/2000 Sb. O ochraně osobních údajů a o změně některých zákonů, v platném znění (dále jen „zákon o ochraně osobních údajů“), se zpracováním uživatelem poskytnutých osobních údajů a dalších dat.
Uživatel poskytuje Správci osobní údaje v rozsahu: jméno, příjmení, e-mailová adresa, telefonický kontakt a další data, a to z důvodu projeveného zájmu o nemovitost, kde prostřednictvím služby Serveru Správce osloví Uživatel inzerenta uvedeného v detailu
nemovitosti - CONTENT REALITY s.r.o. (IČ 04001613) se zájmem o jeho služby.
Uživatel tyto osobní údaje poskytuje dobrovolně a bere na vědomí, že součástí služeb Správce, které Správce Uživateli poskytuje, je vyhledání všech Uživateli vyhovujících (dle parametrů - cena, typ nemovitosti, lokalita atd.) nemovitostí. Správce za tímto účelem provozuje aplikace Hlídací pes a newsletter. Tyto služby je možné z každého zaslaného emailu odhlásit. Souhlas se zpracováním osobních údajů Uživatel poskytuje Správci na dobu neurčitou s tím, že svůj udělený souhlas může Uživatel kdykoliv na drese správce info@realitymix.cz odvolat. Správce garantuje Uživateli i další práva uvedené v ustanovení §11 a §21 zákoba č. 101/200 Sb. Ve znění pozdějších předpisů.
Více informací o zpracování údajů získáte zde (realitymix.cz/zasady-ochrany-osobnich-udaju)