Prodej exkluzivního bytu 3+KK, 108,6 m² Jablonec nad Nisou
Představujeme Vám jedinečnou příležitost pro ty, kteří hledají moderní bydlení s krásami přírody. Dům se nachází v atraktivní lokalitě v Jablonci nad Nisou, která nabízí luxusní výhled na celé město.
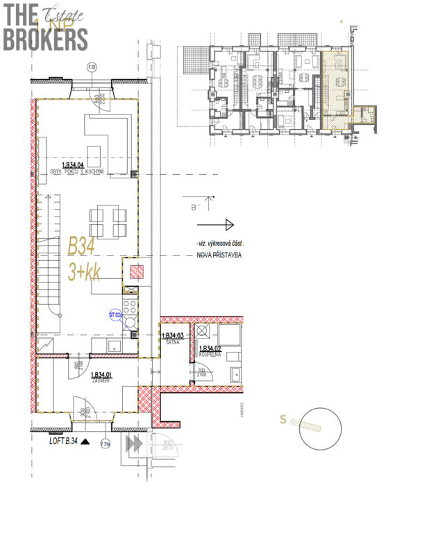
Nabízíme krásný třípodlažní byt 3+KK o celkové užitné ploše 106,7 m² a podlahové ploše 108,6 m², situovaný v moderním projektu. Byt je rozdělen do tří podlaží, z nichž každé nabízí specifické funkční využití pro maximální komfort a pohodlí bydlení.
Vstupní část bytu zahrnuje prostorné zádveří s keramickou dlažbou pro snadnou údržbu.
Obývací pokoj s přípravou na kuchyňskou linku bude centrem společenského života, se spoustou denního světla díky velkým oknům. Koupelna je vybavena doplňkovými zařizovacími předměty od renomované značky Hansgrohe, což zajišťuje dlouhou životnost a vysoký komfort.
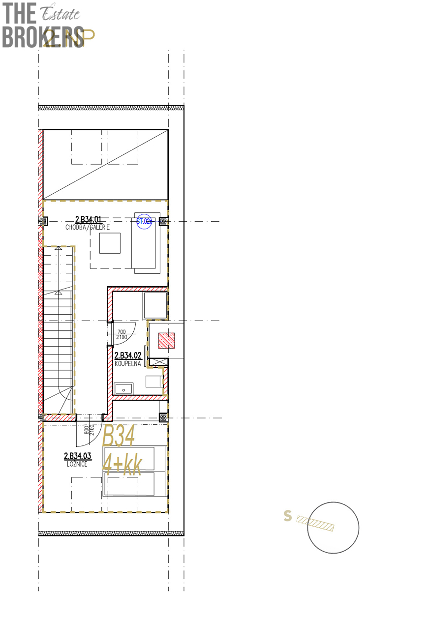
Druhé podlaží slouží jako klidová zóna. Velkorysá hlavní ložnice nabízí dostatek prostoru pro relaxaci. Praktická druhá koupelna se nachází přímo vedle ložnice.
Podkrovní prostor (galerie nebo víceúčelový pokoj) nabízí širokou škálu využití, ať už jako pracovna nebo hobby místnost.
Díky jedinečné atmosféře podkroví je toto patro ideální pro kreativní činnosti nebo klidnou relaxaci.
Každé patro je navrženo s ohledem na pohodlí a maximální využití prostoru.
Dům je postaven ze systémového zdiva Ytong, a to vč. stropní konstrukce , což zajišťuje pevnost a vynikající tepelně izolační vlastnosti. S 18 cm zateplením fasády se pyšní energetickým štítkem třídy B, což garantuje úsporný provoz. Podlahové vytápění s možností individuální regulace v každé místnosti a centrální vytápění prostřednictvím plynové kotelny v přízemí budovy, přináší maximální komfort. Francouzská okna s trojsklem jsou velkou předností, protože zajišťují dostatek denního světla a podtrhují moderní charakter bydlení.
Areál je kompletně oplocený, vjezd zajišťuje pojezdová brána s pohodlným otevíráním na dálkové ovládání. Parkování je zajištěno formou krytých i nekrytých stání.
V okolí Krkonošské ulice v Jablonci nad Nisou naleznete občanskou vybavenost a vynikající dopravní dostupnost. Do centra Jablonce se autem dostanete za přibližně 5 minut. V blízkosti se nachází i napojení na dálnici, což usnadňuje cestování do okolních měst a regionů.
Termín nastěhování je 2. polovina roku 2025. Máte zájem? Kontaktujte nás ještě dnes a domluvte si prohlídku!
Cena:
9 487 000 Kč
Dispozice/podlahová plocha:
3+kk/106 m²
Číslo zakázky:
REALITYMIX-0478
Podrobné informace
Dispozice bytu:3+kk
Číslo podlaží v domě:1
Počet podlaží objektu:3
Celková podlahová plocha:106 m²
Druh objektu:cihlová
Stav objektu:novostavba
Vlastnictví:osobní
Vybaveno:ano
Umístění objektu:klidná část obce
Doprava:silnice, autobus
Elektřina:Elektro - 230 V
Voda:Zdroj pro celý objekt, Voda - dálkový vodovod
V tomto článku shrneme nejdůležitější věci, které byste si měli promyslet, pokud se chystáte prodat svou nemovitost a chcete, abyste s kupujícím nemusel následně řešit vzniklé problémy.
Jako prodávající nesete rizika spojená nejen se samotným obchodem, ale i se stavem nemovitosti v době prodeje a pro minimalizaci rizik, je dobré se zamyslet nad uvedenými oblastmi.
Realitní makléř má své nezastupitelné místo v realitním obchodu. Realitním makléřem nemyslím nevzdělané jelito, které absolvovalo dvoudenní školení a ví, jak se nahraje inzerát na inzertní portál.
Realitním makléřem, který se Vám skutečně vyplatí, je zkušený profesionál, který je schopen Vám dobře poradit jak prodat za co nejvíc a s nejmenším rizikem a hlavně je Vás schopen obratně provést celým realitním obchodem.
Uživatel serveru RealityMIX.iprima.cz (dále jen „Server“) dostupného na internetové adrese (URL) https://realitymix.iprima.cz, který provozuje společnost DALTEN media s.r.o., se sídlem Na Harfě 916/9a, Praha 9, 190 00, IČO: 271 35 306 (dále jen „Správce“) jako provozovateli tohoto Serveru uděluje svůj výslovný souhlas v souladu s ustanovením § 5 zákona č. 101/2000 Sb. O ochraně osobních údajů a o změně některých zákonů, v platném znění (dále jen „zákon o ochraně osobních údajů“), se zpracováním uživatelem poskytnutých osobních údajů a dalších dat.
Uživatel poskytuje Správci osobní údaje v rozsahu: jméno, příjmení, e-mailová adresa, telefonický kontakt a další data, a to z důvodu projeveného zájmu o nemovitost, kde prostřednictvím služby Serveru Správce osloví Uživatel inzerenta uvedeného v detailu
nemovitosti - The Brokers s.r.o. (IČ 05138884) se zájmem o jeho služby.
Uživatel tyto osobní údaje poskytuje dobrovolně a bere na vědomí, že součástí služeb Správce, které Správce Uživateli poskytuje, je vyhledání všech Uživateli vyhovujících (dle parametrů - cena, typ nemovitosti, lokalita atd.) nemovitostí. Správce za tímto účelem provozuje aplikace Hlídací pes a newsletter. Tyto služby je možné z každého zaslaného emailu odhlásit. Souhlas se zpracováním osobních údajů Uživatel poskytuje Správci na dobu neurčitou s tím, že svůj udělený souhlas může Uživatel kdykoliv na drese správce info@realitymix.cz odvolat. Správce garantuje Uživateli i další práva uvedené v ustanovení §11 a §21 zákoba č. 101/200 Sb. Ve znění pozdějších předpisů.
Více informací o zpracování údajů získáte zde (realitymix.cz/zasady-ochrany-osobnich-udaju)