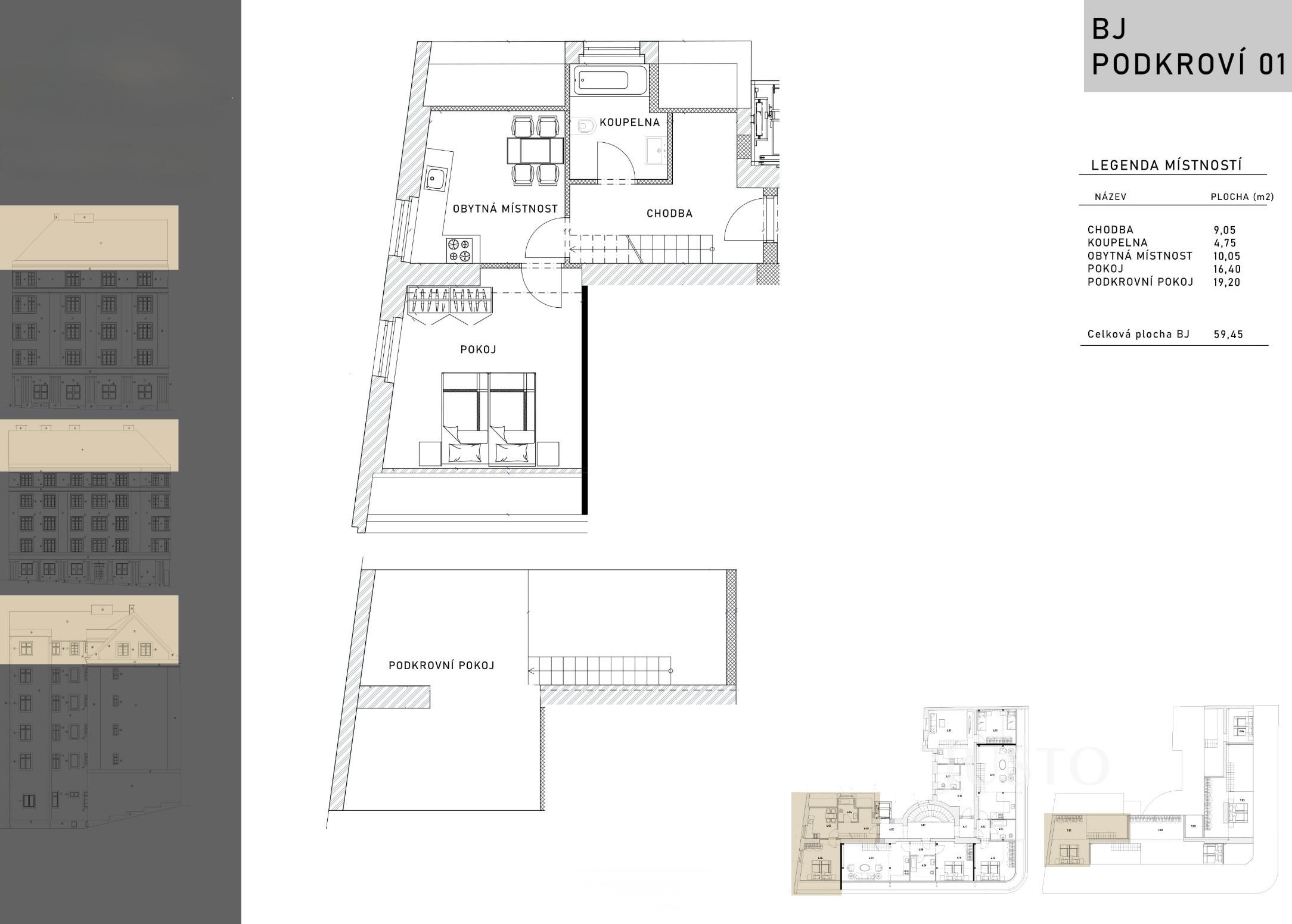
Pronájem stylové a prostorné bytové jednotky o celkové výměře 61 m², nacházející se v kompletně revitalizovaném domě v oblíbené městské části Děčín – Podmokly.
V zastoupení majitele, Vám nabízíme k pronájmu, hezký byt 3+kk s mezonetovým prostorem, který je připraven splnit všechny vaše požadavky pro pohodlné a praktické bydlení.
V celkové ceně je zahrnut nájem spolu s energiemi, elektřina, plyn a voda pro dvě osoby.
Dispozice bytu:
• Hlavní obytný prostor 3KK 40 m² s dostatkem denního světla
• Mezonetový prostor o velikosti 19 m² – ideální jako ložnice, pracovna nebo ateliér
• Moderní bytová jednotka s prvotřídním vybavením a materiály, interiérové dveře
• Vinylové podlahy s odolnou nášlapnou vrstvou, SDK podhledy se zapuštěnými LED světly.
• Stylová obytná kuchyň, vybavená myčkou nádobí, sklokeramickou deskou, elektrickou
troubou.
• Koupelna je osazena vanou.
• Byt je osazen střešními okny s trojskly.
• Příprava pro instalaci přenosné klimatizační jednotky.
Dům a lokalita:
• Dům prošel kompletní revitalizací – nové rozvody, fasáda, střecha, okna, výtah i společné prostory
• Solární ohřev teplé vody a moderní plynová kotelna.
• Na velkém dvoře, v zadní části domu najdete osvětlenou pergolu s posezením.
• K dispozici je i sklepní kóje, kde je vstup z vnitřního schodiště.
• Vstupní dveře jsou protipožární, interiérové rámové s prosklením.
• Výborná dostupnost – v pěší vzdálenosti hlavní vlakové i autobusové nádraží
• Veškerá občanská vybavenost v okolí – obchody, kavárny, školy, zdravotní střediska
Pro koho je byt ideální? Pro jednotlivce, páry nebo kreativní duše hledající inspirativní prostor s výbornou dostupností a atmosférou podkroví.
K nastěhování je od 1.12.2025.
Neváhejte nás kontaktovat pro více informací nebo domluvení prohlídky!
Uživatel serveru RealityMIX.iprima.cz (dále jen „Server“) dostupného na internetové adrese (URL) https://realitymix.iprima.cz, který provozuje společnost DALTEN media s.r.o., se sídlem Na Harfě 916/9a, Praha 9, 190 00, IČO: 271 35 306 (dále jen „Správce“) jako provozovateli tohoto Serveru uděluje svůj výslovný souhlas v souladu s ustanovením § 5 zákona č. 101/2000 Sb. O ochraně osobních údajů a o změně některých zákonů, v platném znění (dále jen „zákon o ochraně osobních údajů“), se zpracováním uživatelem poskytnutých osobních údajů a dalších dat.
Uživatel poskytuje Správci osobní údaje v rozsahu: jméno, příjmení, e-mailová adresa, telefonický kontakt a další data, a to z důvodu projeveného zájmu o nemovitost, kde prostřednictvím služby Serveru Správce osloví Uživatel inzerenta uvedeného v detailu
nemovitosti - JUSTO Česká republika (IČ 04419995) se zájmem o jeho služby.
Uživatel tyto osobní údaje poskytuje dobrovolně a bere na vědomí, že součástí služeb Správce, které Správce Uživateli poskytuje, je vyhledání všech Uživateli vyhovujících (dle parametrů - cena, typ nemovitosti, lokalita atd.) nemovitostí. Správce za tímto účelem provozuje aplikace Hlídací pes a newsletter. Tyto služby je možné z každého zaslaného emailu odhlásit. Souhlas se zpracováním osobních údajů Uživatel poskytuje Správci na dobu neurčitou s tím, že svůj udělený souhlas může Uživatel kdykoliv na drese správce info@realitymix.cz odvolat. Správce garantuje Uživateli i další práva uvedené v ustanovení §11 a §21 zákoba č. 101/200 Sb. Ve znění pozdějších předpisů.
Více informací o zpracování údajů získáte zde (realitymix.cz/zasady-ochrany-osobnich-udaju)