Pronájem unikátního historického domu na prestižní ulici Jakubská
Nabízíme k dlouhodobému pronájmu jedenáct plně zrekonstruovaných jednotek v historickém domě v samotném srdci Brna, na prestižní adrese Jakubská 9. Využití jednotek je velmi různorodé – od krátkodobých pobytů přes nadstandardní bydlení pro zahraniční studenty až po dlouhodobé pronájmy.
U všech variant využití je možné zajistit téměř bezúdržbový provoz pomocí například selfcheckin automatů (tzv. automatická recepce), kódových zámků, kamerového systému apod. Spolupráci na zajištění stravování se nebrání ani kvalitní nájemce gastro provozu v přízemí.
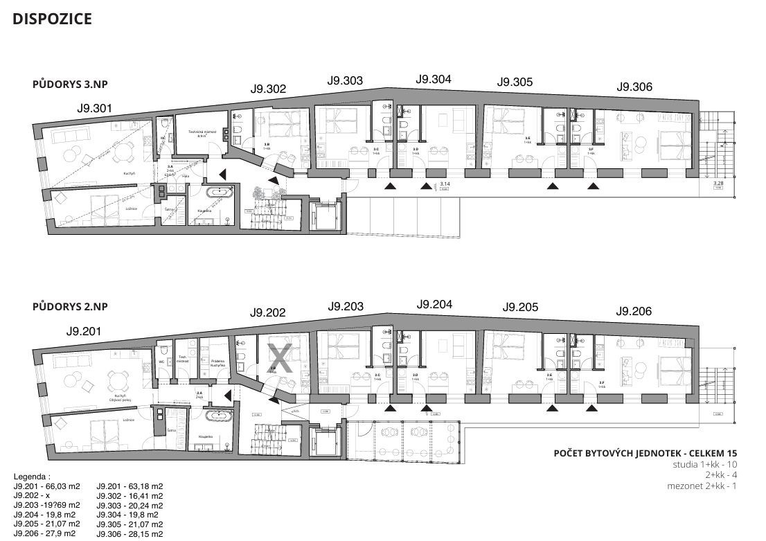
Jednotky se nacházejí ve 2. a 3. nadzemním podlaží domu. Každé patro nabízí prostornou jednotku typu 2+kk s výhledem do ulice a dále jednotky o dispozici 1+kk s různou podlahovou plochou. Každá jednotka je plně vybavena a připravena k okamžitému užívání. Součástí standardu jsou moderní spotřebiče, jako je televizor, trouba s mikrovlnnou funkcí, varná konvice, sklokeramická varná deska, myčka nádobí, lednice, pračka se sušičkou a klimatizace. Jednotky jsou navrženy s důrazem na styl, funkčnost a estetický detail – každý prostor působí útulně, moderně a ladí s jednotným, kvalitním interiérovým konceptem, který odpovídá vysokým nárokům na komfortní bydlení.
Ve vnitrobloku domu se nachází letní zahrádka s posezením a grilem, kterou je v případě možné zájmu také nabídnout k pronájmu pro obyvatele domu. V domě je k dispozici výtah. V každé jednotce je k dispozici internetové připojení.
A co dělá tyto jednotky výjimečné? Bydlení na Jakubské ulici nabízí něco, co potencionální nájemníci jinde nenajdou. Prestižní poloha v centru města znamená, že mohou užívat výhody perfektní občanské vybavenosti a zároveň pohodlí vlastního domova. Hned za dveřmi najdou restaurace, kavárny, obchody, fitness centra, lékárny a další služby. Dopravní uzel Česká, vzdálený jen dvě minuty pěšky, umožní rychlé spojení kamkoliv. Pro chvíle zábavy či kultury jsou divadla, kina, galerie i historická místa doslova za rohem. V bezprostřední blízkosti nemovitosti se nachází tři velkokapacitní parkovací domy.
Celkově se jedná o unikátní nabídku pronájmu plně zrekonstruovaného jednotek na jedné z nejprestižnějších adres v Brně. Jednotky budou připraveny k okamžitému využití ve stávajícím stavu, bez nutnosti dalších úprav od 1.9.2025.
V případě zájmu o více informací nebo sjednání osobní prohlídky nás neváhejte kontaktovat.
Cena:
Cena na vyžádání
Poznámka:
Info v RK
Datum k nastěhování:
01.09.2025
Číslo zakázky:
REALITYMIX-J9
Podrobné informace
Plocha parcely:323 m²
Ostatní:Garáž, Výtah
Doprava:silnice, MHD
Elektřina:Elektro - 230 V
Voda:Zdroj pro celý objekt, Voda - dálkový vodovod
Uživatel serveru RealityMIX.iprima.cz (dále jen „Server“) dostupného na internetové adrese (URL) https://realitymix.iprima.cz, který provozuje společnost DALTEN media s.r.o., se sídlem Na Harfě 916/9a, Praha 9, 190 00, IČO: 271 35 306 (dále jen „Správce“) jako provozovateli tohoto Serveru uděluje svůj výslovný souhlas v souladu s ustanovením § 5 zákona č. 101/2000 Sb. O ochraně osobních údajů a o změně některých zákonů, v platném znění (dále jen „zákon o ochraně osobních údajů“), se zpracováním uživatelem poskytnutých osobních údajů a dalších dat.
Uživatel poskytuje Správci osobní údaje v rozsahu: jméno, příjmení, e-mailová adresa, telefonický kontakt a další data, a to z důvodu projeveného zájmu o nemovitost, kde prostřednictvím služby Serveru Správce osloví Uživatel inzerenta uvedeného v detailu
nemovitosti - Icbreality s.r.o. (IČ 02710943) se zájmem o jeho služby.
Uživatel tyto osobní údaje poskytuje dobrovolně a bere na vědomí, že součástí služeb Správce, které Správce Uživateli poskytuje, je vyhledání všech Uživateli vyhovujících (dle parametrů - cena, typ nemovitosti, lokalita atd.) nemovitostí. Správce za tímto účelem provozuje aplikace Hlídací pes a newsletter. Tyto služby je možné z každého zaslaného emailu odhlásit. Souhlas se zpracováním osobních údajů Uživatel poskytuje Správci na dobu neurčitou s tím, že svůj udělený souhlas může Uživatel kdykoliv na drese správce info@realitymix.cz odvolat. Správce garantuje Uživateli i další práva uvedené v ustanovení §11 a §21 zákoba č. 101/200 Sb. Ve znění pozdějších předpisů.
Více informací o zpracování údajů získáte zde (realitymix.cz/zasady-ochrany-osobnich-udaju)