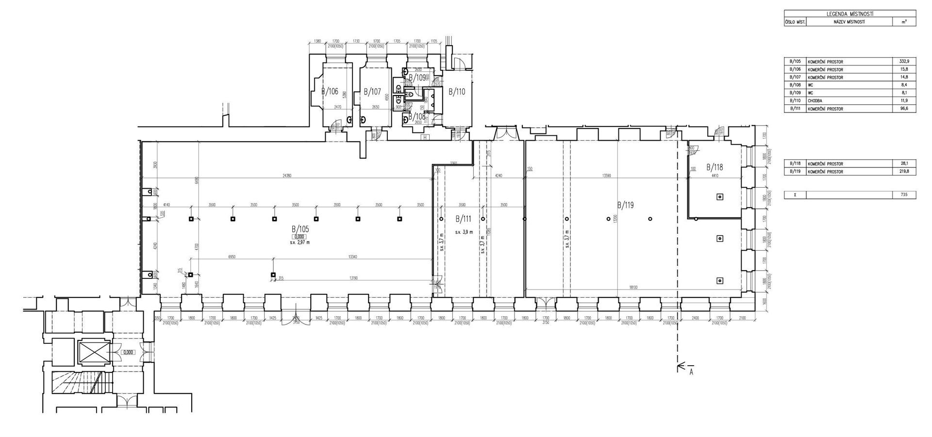
Pronájem prostorných obchodních prostor v centru Brna
Nabízíme k pronájmu obchodní prostory o celkové výměře 735 m2, které se nachází v přízemí budovy víceúčelového areálu v centru Brna a je k dispozici ihned.
Prostory jsou viditelné z ulice a u umístěné v ideální poloze mezi dvěma průchody, které spojují areál Václavská a jsou hodné na provozování různorodých komerčních činností. Prostory si zájemce může upravit dle svých představ a to jak technicky, tak rozměrově. Přístup do areálu i budovy je nonstop.
V areálu se nacházejí další kancelářské a obchodní prostory, kavárny, fitness centrum a dále 350 bytových jednotek, jejíž nájemníci mohou být Vaši potencionální klienti. Po dohodě je možné v areálu umístit reklamu či navigační systém. Tramvajová zastávka Václavská se nachází přímo před vjezdem do areálu a dopravní uzel Mendlovo náměstí je vzdálen cca 3 minuty chůze. Hlavní nádraží a OC Vaňkova se nacházejí do 7 minut autem. Areál je také pouhých 5 minut od výstaviště.
Přímo před budovou je dostatek parkovacích míst, jak pro nájemníky tak pro jejich zákazníky. Současně s nájmem nabízíme taktéž možnost pronájmu parkovacího místa a to za 2 190 Kč/měsíc vč. DPH. Parkoviště je osvětleno. Možnost příjezdu i pro nákladní automobily.
Pro další informace či prohlídku nás neváhejte kontaktovat.
Cena:
Cena na vyžádání
Poznámka:
+ záloha elektřina, voda a paušální služby dle využití prostoru + kauce 250 000 + administrativní poplatek
Datum k nastěhování:
28.01.2025
Číslo zakázky:
REALITYMIX-976906
Podrobné informace
Plocha kanceláří:735 m²
Druh objektu:cihlová
Stav objektu:velmi dobrý
Druh prostor:Obchodní
Ostatní:Výtah
Doprava:vlak, dálnice, silnice, MHD
Elektřina:Elektro - 230 V
Voda:Zdroj pro celý objekt, Voda - dálkový vodovod
Uživatel serveru RealityMIX.iprima.cz (dále jen „Server“) dostupného na internetové adrese (URL) https://realitymix.iprima.cz, který provozuje společnost DALTEN media s.r.o., se sídlem Na Harfě 916/9a, Praha 9, 190 00, IČO: 271 35 306 (dále jen „Správce“) jako provozovateli tohoto Serveru uděluje svůj výslovný souhlas v souladu s ustanovením § 5 zákona č. 101/2000 Sb. O ochraně osobních údajů a o změně některých zákonů, v platném znění (dále jen „zákon o ochraně osobních údajů“), se zpracováním uživatelem poskytnutých osobních údajů a dalších dat.
Uživatel poskytuje Správci osobní údaje v rozsahu: jméno, příjmení, e-mailová adresa, telefonický kontakt a další data, a to z důvodu projeveného zájmu o nemovitost, kde prostřednictvím služby Serveru Správce osloví Uživatel inzerenta uvedeného v detailu
nemovitosti - Icbreality s.r.o. (IČ 02710943) se zájmem o jeho služby.
Uživatel tyto osobní údaje poskytuje dobrovolně a bere na vědomí, že součástí služeb Správce, které Správce Uživateli poskytuje, je vyhledání všech Uživateli vyhovujících (dle parametrů - cena, typ nemovitosti, lokalita atd.) nemovitostí. Správce za tímto účelem provozuje aplikace Hlídací pes a newsletter. Tyto služby je možné z každého zaslaného emailu odhlásit. Souhlas se zpracováním osobních údajů Uživatel poskytuje Správci na dobu neurčitou s tím, že svůj udělený souhlas může Uživatel kdykoliv na drese správce info@realitymix.cz odvolat. Správce garantuje Uživateli i další práva uvedené v ustanovení §11 a §21 zákoba č. 101/200 Sb. Ve znění pozdějších předpisů.
Více informací o zpracování údajů získáte zde (realitymix.cz/zasady-ochrany-osobnich-udaju)