Pronájem prostorných obchodních prostor v centru Brna
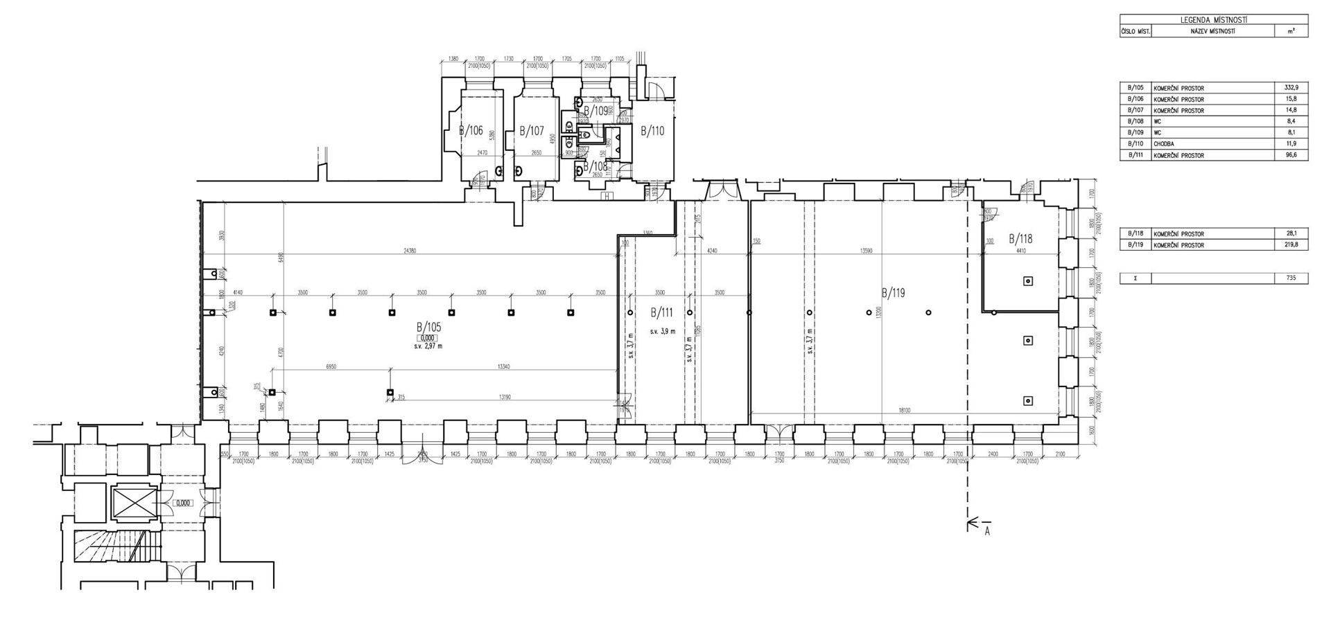
Nabízíme k pronájmu lukrativní obchodní prostory o celkové rozloze 735 m², umístěné v přízemí víceúčelového areálu v centru Brna, které jsou k dispozici ihned. Díky viditelnosti z ulice a strategickému umístění mezi dvěma frekventovanými průchody, které spojují areál Václavská, jsou ideální pro široké spektrum komerčních aktivit.
Nájemci mají možnost přizpůsobit si prostory dle vlastních požadavků – jak technicky, tak i rozměrově. Vstup do areálu i budovy je zajištěn nepřetržitě. Kromě obchodních prostor nabízí areál také kanceláře, kavárny, fitness centrum a rezidenční část s 350 bytovými jednotkami, což vytváří přímou potenciální klientelu.
Výhodou je výborná dopravní dostupnost – tramvajová zastávka Václavská se nachází přímo před areálem, Mendlovo náměstí je vzdálené jen 3 minuty chůze a Hlavní nádraží či OC Vaňkovka jsou dosažitelné do 7 minut jízdy autem. Areál se nachází pouhých 5 minut od výstaviště.
Pro nájemce a jejich zákazníky je k dispozici dostatek parkovacích míst před budovou, s možností pronájmu parkovacího místa za 2 190 Kč/měsíc vč. DPH. Parkoviště je osvětlené a umožňuje příjezd i pro nákladní automobily.
Pro bližší informace nebo domluvení prohlídky nás neváhejte kontaktovat.
Cena:
Cena na vyžádání
Poznámka:
+ záloha elektřina, voda a paušální služby dle využití prostoru + kauce + administrativní poplatek
Datum k nastěhování:
28.01.2025
Číslo zakázky:
REALITYMIX-976905
Podrobné informace
Plocha kanceláří:735 m²
Druh objektu:cihlová
Stav objektu:velmi dobrý
Druh prostor:Kanceláře
Ostatní:Výtah
Doprava:vlak, dálnice, silnice, MHD
Elektřina:Elektro - 230 V
Voda:Zdroj pro celý objekt, Voda - dálkový vodovod
Uživatel serveru RealityMIX.iprima.cz (dále jen „Server“) dostupného na internetové adrese (URL) https://realitymix.iprima.cz, který provozuje společnost DALTEN media s.r.o., se sídlem Na Harfě 916/9a, Praha 9, 190 00, IČO: 271 35 306 (dále jen „Správce“) jako provozovateli tohoto Serveru uděluje svůj výslovný souhlas v souladu s ustanovením § 5 zákona č. 101/2000 Sb. O ochraně osobních údajů a o změně některých zákonů, v platném znění (dále jen „zákon o ochraně osobních údajů“), se zpracováním uživatelem poskytnutých osobních údajů a dalších dat.
Uživatel poskytuje Správci osobní údaje v rozsahu: jméno, příjmení, e-mailová adresa, telefonický kontakt a další data, a to z důvodu projeveného zájmu o nemovitost, kde prostřednictvím služby Serveru Správce osloví Uživatel inzerenta uvedeného v detailu
nemovitosti - Icbreality s.r.o. (IČ 02710943) se zájmem o jeho služby.
Uživatel tyto osobní údaje poskytuje dobrovolně a bere na vědomí, že součástí služeb Správce, které Správce Uživateli poskytuje, je vyhledání všech Uživateli vyhovujících (dle parametrů - cena, typ nemovitosti, lokalita atd.) nemovitostí. Správce za tímto účelem provozuje aplikace Hlídací pes a newsletter. Tyto služby je možné z každého zaslaného emailu odhlásit. Souhlas se zpracováním osobních údajů Uživatel poskytuje Správci na dobu neurčitou s tím, že svůj udělený souhlas může Uživatel kdykoliv na drese správce info@realitymix.cz odvolat. Správce garantuje Uživateli i další práva uvedené v ustanovení §11 a §21 zákoba č. 101/200 Sb. Ve znění pozdějších předpisů.
Více informací o zpracování údajů získáte zde (realitymix.cz/zasady-ochrany-osobnich-udaju)