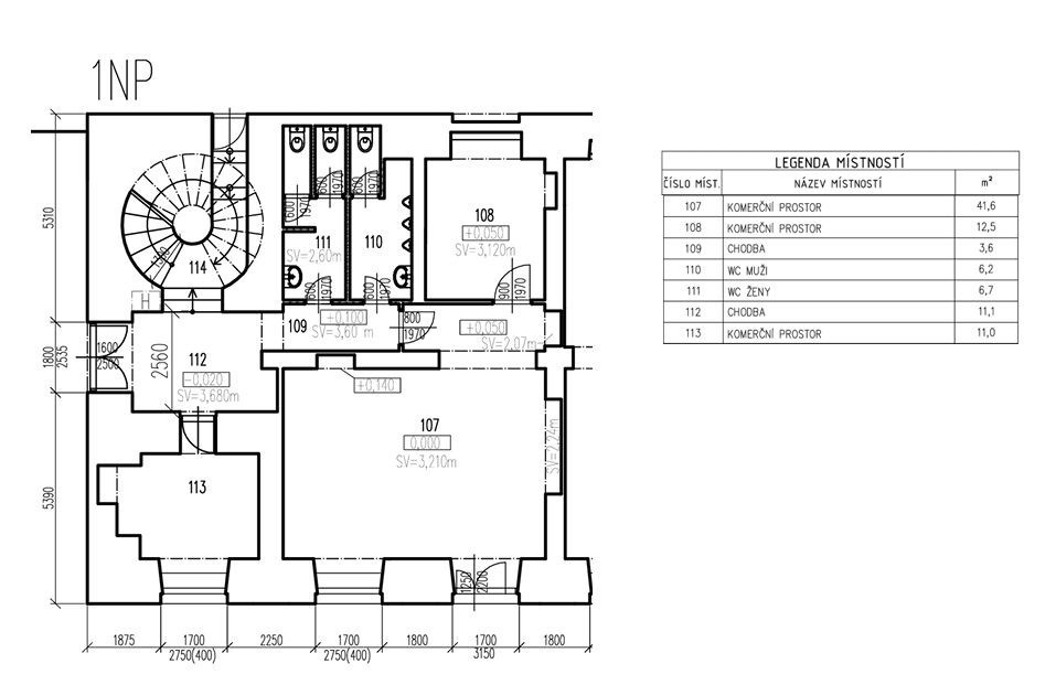
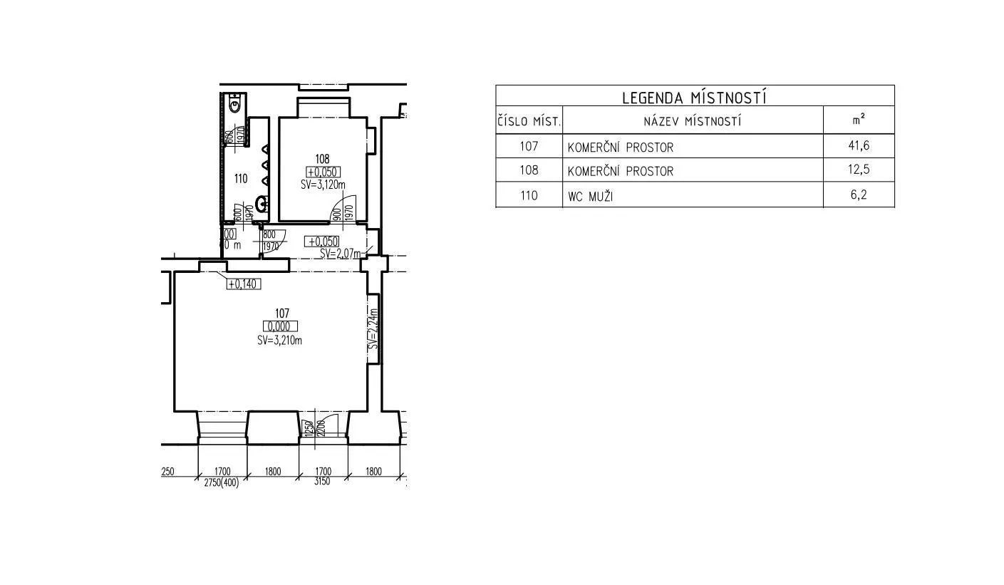
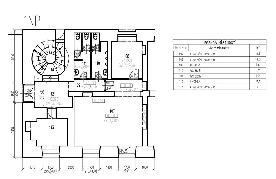
Nabízíme k pronájmu velmi atraktivní obchodní prostor v přízemí budovy o výměře 90 m2 ve velmi frekventovaném areálu na ulici Václavská u hlavního dopravního uzlu Mendlovo náměstí, který je k dispozici ihned.
Prostor je vhodný k jakékoliv obchodní činnosti, například na prodejnu, showroom, kavárnu či služby typu manikúra apod. Součástí prostoru je toaleta, prodejní prostor a prostor pro sklad/zázemí. Výhodou jsou velké výkladce, které jsou viditelné z uliční fronty. Skládá se z jednoho otevřeného prostoru, který je možné rozdělit na prodejní/obchodní prostor a zadní skladovací část. Dále prostor nabízí oddělenou kancelář a druhý vchod. V prostoru je k dispozici menší prostor pro zázemí a tři toalety. Dále je zde možnost pronájmu vyhrazeného místa přímo před prodejnou vhodného například pro zahrádku.
Parkování je možné přímo u prostoru. Nabízíme také možnost pronájmu dlouhodobého vjezdu do areálu nebo možnost umístění reklamy přímo k tramvajové zastávce Václavská (mimo jiné, zastávky tramvají číslo 1 a 2) či přímo na budovu. Dále se v bezprostřední blízkosti nachází různorodé prodejny a výdejny eshopů, provozovatelé volnočasových aktivit jako je fitness centrum BigOne, pingpongová herna, karate apod. Dále se zde nachází cca 400 bytových jednotek, jejichž obyvatelé využívají služeb nabízených v jejich blízkosti.
Neváhejte využít této zajímavé příležitosti a kontaktujte nás pro vice informací.
Cena:
24 900 Kč / (za měsíc)
Poznámka:
+ 4 000 Kč bez DPH na služby + záloha elektřina a voda dle způsobu využití + 50 000 Kč vratná kauce + administrativní poplatek
Uživatel serveru RealityMIX.iprima.cz (dále jen „Server“) dostupného na internetové adrese (URL) https://realitymix.iprima.cz, který provozuje společnost DALTEN media s.r.o., se sídlem Na Harfě 916/9a, Praha 9, 190 00, IČO: 271 35 306 (dále jen „Správce“) jako provozovateli tohoto Serveru uděluje svůj výslovný souhlas v souladu s ustanovením § 5 zákona č. 101/2000 Sb. O ochraně osobních údajů a o změně některých zákonů, v platném znění (dále jen „zákon o ochraně osobních údajů“), se zpracováním uživatelem poskytnutých osobních údajů a dalších dat.
Uživatel poskytuje Správci osobní údaje v rozsahu: jméno, příjmení, e-mailová adresa, telefonický kontakt a další data, a to z důvodu projeveného zájmu o nemovitost, kde prostřednictvím služby Serveru Správce osloví Uživatel inzerenta uvedeného v detailu
nemovitosti - Icbreality s.r.o. (IČ 02710943) se zájmem o jeho služby.
Uživatel tyto osobní údaje poskytuje dobrovolně a bere na vědomí, že součástí služeb Správce, které Správce Uživateli poskytuje, je vyhledání všech Uživateli vyhovujících (dle parametrů - cena, typ nemovitosti, lokalita atd.) nemovitostí. Správce za tímto účelem provozuje aplikace Hlídací pes a newsletter. Tyto služby je možné z každého zaslaného emailu odhlásit. Souhlas se zpracováním osobních údajů Uživatel poskytuje Správci na dobu neurčitou s tím, že svůj udělený souhlas může Uživatel kdykoliv na drese správce info@realitymix.cz odvolat. Správce garantuje Uživateli i další práva uvedené v ustanovení §11 a §21 zákoba č. 101/200 Sb. Ve znění pozdějších předpisů.
Více informací o zpracování údajů získáte zde (realitymix.cz/zasady-ochrany-osobnich-udaju)